






| Verze | | Bez mechanismu tlumení | s mechanismem tlumeného zavírání |
|---|---|
| Rozsah použití | | Pro jednoduché dveře, dvojité dveře s rovným designem korpusu a pro rohová řešení |
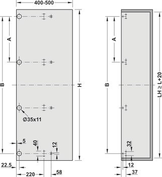
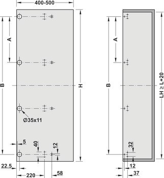
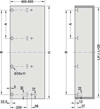
| Pro tloušťku dveří | | 15 – 24 mm |
| Materiál | | Ocel |
| Model | | Mechanismus otevírání dveří 17/24 FB |
| Princip funkce | | Dveře se vykývnou paralelně ke korpusu v malém poloměru |
| Hmotnost dveří max. | | 17,00 kg | 17.00 kg |
| Pro výšku dveří | | 600 – 2400 mm |
| Pro šířku dveří | | 400 – 500 mm |