




2 zdvihací mechanismy 20K2B00.06 – 20K2E00.06 (2 kusy, symetrické, s 6 vruty do dřevotřísky ⌀ 4 x 35 mm)
2 krytky
1 montážní návod





| Verze | Montáž čelního panelu bez nářadí díky klip systému,Otevírací síla a zavírací síla plynule nastavitelná na zdvihacím mechanismu,Šířka výklopu závisí na výkonnostním faktoru |
|---|---|
| Barva/povrchová úprava | |
| Montáž | montáž čelního panelu bez nářadí díky klip systému |
| Materiál | Ocel |
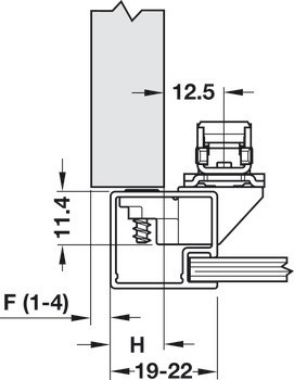
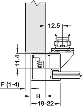
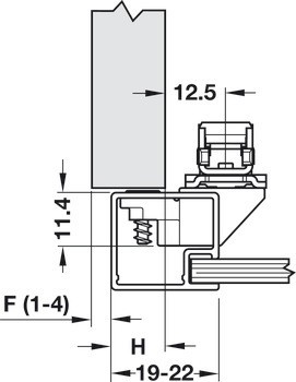
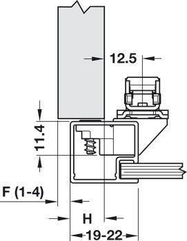
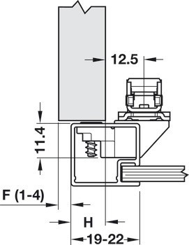
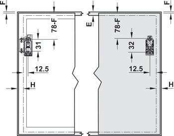
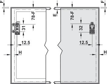
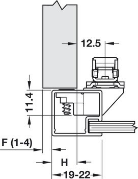
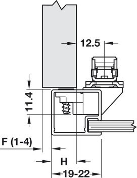
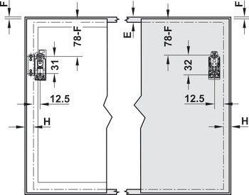
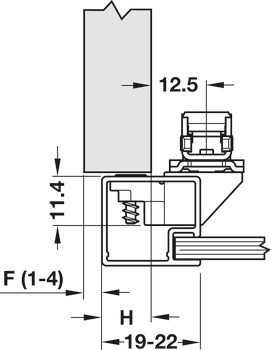
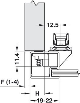
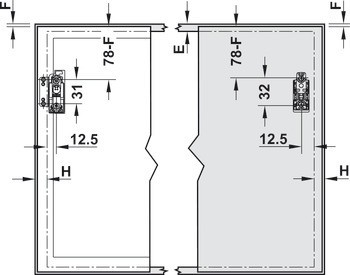
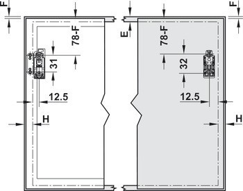
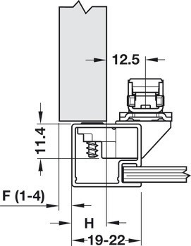
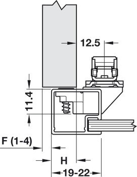
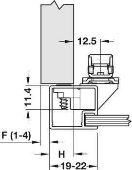
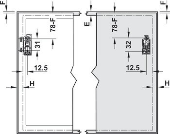
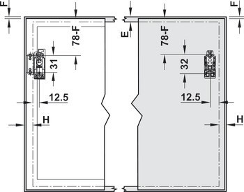
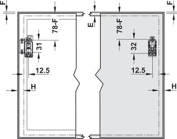
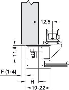
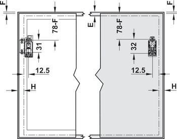
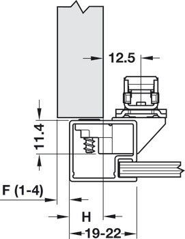
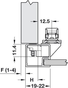
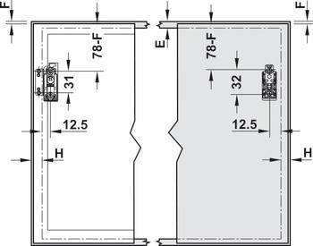
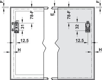
| Poznámka k montáži | Výpočet rozměrů zdvihacího mechanismu výkonnostní faktor LF = výška korpusu (mm) x hmotnost čelního panelu (kg) včetně hmotnosti dvojité úchytky (kg)Výkonnostní faktor lze zvýšit o 50 % pomocí 3. zdvihacího mechanismu. |
| Model | | 20K2B00.06 | 20K2C00.06 | 20K2E00.06 |
| Barva krytu | Světle šedá | Tmavě šedá | Hedvábná bílá |
| Barva/povrchová úprava krytu | |
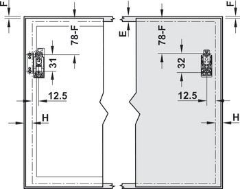
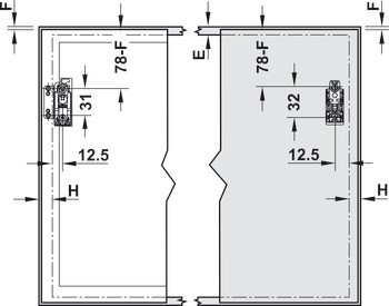
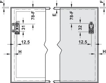
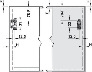
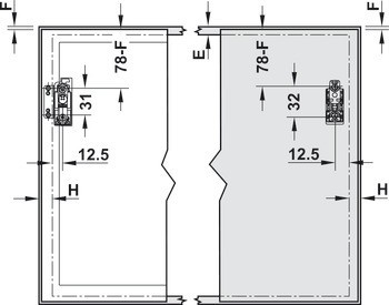
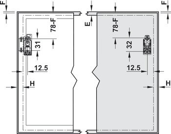
| Pro výšku korpusu | 150 – 600 mm |
| Úhel otevření | 107 ° |
| Materiál víka | Dřevo, Hliníkový rámeček |
| Výkonnostní faktor | | 220 – 500 | 400 – 1,000 | 960 – 2,215 |
| Model No. | 20K2B00.06 | 20K2C00.06 | 20K2E00.06 |
| Barva/povrchová úprava | Zdvihací mechanismus: pozink |
| Typ výklopu | jednodílné |