




4 vozíky
1 unašeč dveří
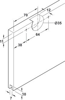
2 dveřní dorazy s nacvakávacím dveřním dorazem
2 podlahová vedení

| Rozsah použití | Pro 2 dveře |
|---|---|
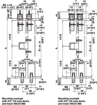
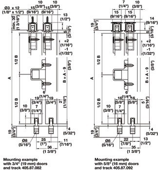
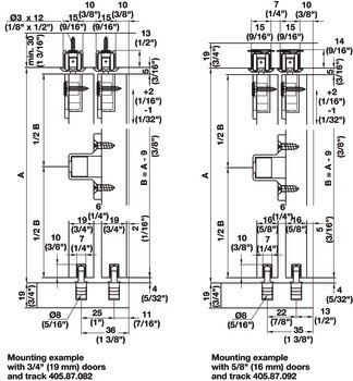
| Zařízení pro nastavení | Height adjustment -1/+2 mm, Výška +2/-1 mm na vozíku pomocí nastavovacího kolečka |
| Pro tloušťku dveří | 16 – 19 mm |
| Pro materiál dveří | Hliníkový rámeček |
| Design skříně | s tenkými horními panely korpusu|s úzkými dveřmi |
| Sada | Sada bez kolejnic |
| Pro výšku dveří | ≤1400 mm |
| Počet dveří | 2,00 |
| Mechanismus tlumeného zavírání | bez mechanismu tlumeného dotahu, s nacvakávacím dveřním dorazem |
| Nastavení výšky | -1/+2 mm |
| Pro šířku dveří | ≤1000 mm |
| Pro hmotnost dveří | ≤16 kg |
| Materiál/Povrchová úprava | Tělo: Plast, Vozík: Plast, Vedení: Plast, Kolečka: Plast, Osy: Ocel |
| Montáž | Vedení k nalisování do vrtaného otvoru|Tělo k přišroubování|Vozík bez nářadí (systém rychlomontáže) |
| Poloha pojezdu | Nahoře |
| Počet koleček | 4,00 |
| Uložení vozíku | Kluzné ložisko |
| Nastavení dveří přes | nastavitelné kolečko |