




4 vozíky
4 dveřních dorazů (2 s nacvakávacím dveřním dorazem/2 dorazy)
2 vedení


| Verze | S nacvakávacím dveřním dorazem |
|---|---|
| Rozsah použití | | Pro 2 dveře | Pro 3 dveře |
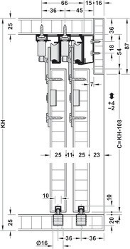
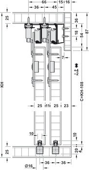
| Zařízení pro nastavení | Height adjustment -2/+4 mm, Výška +4/-2 mm na vozíku pomocí excentru |
| Pro tloušťku dveří | 25 – 40 mm |
| Pro výšku dveří | ≤2600 mm |
| Mechanismus tlumeného zavírání | bez mechanismu tlumeného dotahu, s nacvakávacím dveřním dorazem |
| Nastavení výšky | -2/+4 mm |
| Pro šířku dveří | ≤1400 mm |
| Pro hmotnost dveří | ≤65 kg |
| Dveřní doraz | Horní nacvakávací dveřní doraz a mechanismus tlumeného dotahu, pro nasunutí do pojezdové kolejnice |
| Materiál/Povrchová úprava | Vozík: Ocel, Vedení: Plast, Kolečko: Plast |
| Montáž | Vedení k nalisování do vrtaného otvoru|Vozík k přišroubování |
| Poloha pojezdu | Nahoře |
| Počet koleček | 1.00 |
| Uložení vozíku | Kuličkové ložisko |
| Nastavení dveří přes | excentrický šroub |