




1 sada hliníkového rámečku s upevňovacími díly
1 sada profilů pro těsnění panelu
1 pojezdová kolejnice
1 vozík
2 mechanismy tlumeného dotahu
1 vodicí kolejnice
1 podlahové vedení
1 sada vodicích koleček
2 distanční podložky
1 pár koncových krytek
1 dveřní doraz montovaný na podlahu (pro volitelné použití)
2 Imbus klíč
1 stranový klíč




| Verze | Skrytý pojezdový mechanismus integrovaný ve dveřích |
|---|---|
| Rozsah použití | Pro soukromé rezidenční sektoryPro 1křídlé posuvné dveřepro tvrdé podlahy (laminát, PVC, dlaždice) a měkké podlahy (koberce, korek – pouze pro použití v kombinaci se spodní kolejnicí) |
| Poznámka k montáži | Zajistěte, aby podlaha byla v roviněPro měkké podlahy je vyžadována spodní kolejnicePřipravte konstrukci stěny pro horní kolečko |
| Model | 80N |
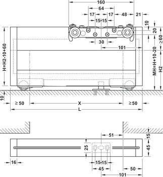
| Zařízení pro nastavení | Height adjustment ±2 mm, Vzdálenost dveří od stěny +4 mm (nastavení na obou stranách, pro kompenzaci nerovných stěn)výškové ±2 mm |
| Pro materiál dveří | dřevo, sklo, rámové dveře |
| Pro výšku dveří | ≤2,600 mm |
| Počet dveří v systému max. | 1 |
| Počet dveří | 1,00 | 1.0 |
| Mechanismus tlumeného zavírání | s mechanismem tlumeného dotahu |
| Pro šířku dveří | | 1,500 mm | 1,100 mm |
| Pro hmotnost dveří | ≤80 kg |
| Typ montáže | Montáž na stěnu |
| Pro typ skla | Tvrzené bezpečnostní sklo (ESG)|Vrstvené bezpečnostní sklo (VSG) |
| Pro tloušťku skla s tvrzeným bezpečnostním sklem (ESG) | 6 mm, 8 mm, 5 mm |
| Pro tloušťku skla s vrstveným bezpečnostním sklem (VSG) | 6-8,7 mm |