









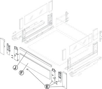
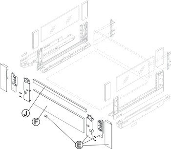
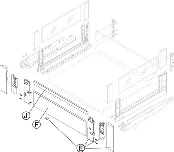
| Délka | | 1.080,00 mm | 1'080.00 mm |
|---|---|
| Barva/povrchová úprava | | terra, černá | barva nerez, Elox, matné | šedá Orion, Matná | hedvábná bílá, Matná | karbonově černá, Matná |
| Rozsah použití | pro tloušťku boční stěny 19 mm |
| Montáž | Pro zkrácení na míru: světlá šířka korpusu – 90 mmk nasunutí do čelního držáku (vnitřní výsuv) nebo držáku relingu (příčný reling) |
| Materiál | Hliník |
| Pro tloušťku bočního panelu | 16 mm |
| Model No. | ZR7.1080U |
| Pro šířku korpusu max. | | 1.200,00 mm | 1'200.00 mm |
| Pro systémovou výšku | C |