




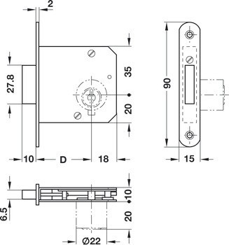
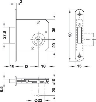
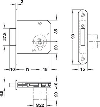
1 Tělo zadlabacího zámku
1 Protiplech


| Barva/povrchová úprava | Tělo zámku: leskléčelní plech: matný nikl |
|---|---|
| Montáž | | K přišroubování | Levá, pravá nebo zásuvková verze |
| Materiál | Tělo zámku: ocelčelní plech: mosaz |
| Poznámka k montáži | Při montáži zásuvky je backset zmenšen o 3 mm. |
| Montáž | Levá, pravá nebo zásuvková verze |
| Tvar vložky | připraveno pro kruhovou vložku |
| Klíč je obsažen | Ne |
| Backset D | |
| Backset | | 40,00 mm | 30,00 mm |