





| Rozsah použití | | Dole |
|---|---|
| Montáž | | K přišroubování na základní panel korpusu |
| Materiál | | Hliník |
| Barva/povrchová úprava | | Barva stříbra, elox |
| Vhodné pro | Häfele Slido F-Line21 20B |
| Typ produktu | | Dvojitá vodicí kolejnice |
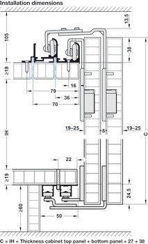
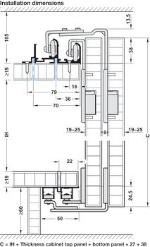
| Pro tloušťku dveří | | 19 – 25 mm |
| Délka | | 3,500 mm |
| Pro hmotnost dveří | | ≤60 kg |
| Verze kolejnice | | Dvojité |
| Poloha | | spodní |
| Vybavení | | Dorazová páska |