Zavřít
Pobočky
Přihlášení
0
0,00 Kč
Váš seznam je zatím prázdný.
0
Menu
Úchytky
Nábytkové úchytky a knobky
Okenní kliky
Dveřní kliky
Bezpečnostní kování
Nábytkové kování
Příslušenství dveří, Dorazy
Koupelnové doplňky a sanita
Nábytkové závěsy
Vybavení prodejen
Řešení pro domov a život
Věšáky na šaty a věšáky do šatních skříní
Postelová kování
Kování do šatních skříní a úložných prostor
Multimediální archiv
Žebříky do knihoven
Zámky, Záskočky a zástrče
Nábytkové zámky a zamykací systémy
Nábytkové záskočky a zástrče
Trezory a skříně na zbraně
Výklopná kování a klopny
Stolová kování, Nohy, Nohy a kolečka
Stolové nohy, Nábytkové nohy a mechanismy nastavení
Stolová kování
Nábytkové kluzáky a kolečka
Spojovací kování a podpěrky polic
Spojovací kování
Podpěrky polic a konzole
Kování pro kanceláře a vybavení obchodů
Systém kancelářského stolového podnoží
Organizace kanceláře
Kancelářské židle
Akustická a pohledová ochrana
Zásuvky, Zásuvkové systémy a výsuvy
Zásuvkové výsuvy
Zásuvkové systémy
Vložky do zásuvky
Vybavení kuchyní
Dřezy a kuchyňské baterie
Spotřebiče
Malé spotřebiče
Myčky
Chlazení a mražení
Větrací mřížky a systémy
Pracovní desky a záda
Úložné prostory a příslušenství do kuchyně
Nakládání s odpadky
Osvětlení & elektro
Osvětlení
Zdvihací mechanismy do korpusu, TV zdvihy a držáky
Elektrické příslušenství
Systémy pro TV a multimédia
Posuvné kování
Systémy posuvných stěn
Kování pro posuvné a skládací nábytkové dveře
Stavební kování pro posuvné a skládací dveře
Obvodový plášť budovy
Stavební kování
Skleněné dveře & Kování pro skleněné dveře
Dveřní zavírače
Stavební vybavení
Zamykací systémy
Zámky a závory
Kování pro panikové uzávěry
Řízení kontroly vstupu
Příslušenství dveří
Dveřní závěsy
Nářadí & příslušenství
Údržba & Balení
Péče o povrchy & Opravy
Ochranné pomůcky & Pracovní oděvy
Těsnicí hmoty & Lepidla
Lepidla
Těsnicí hmoty
Pásky
Šrouby
Upevňovací materiál
Nářadí a Příslušenství
Ruční nářadí a přípravky
Elektrické nářadí
Vrtáky, bity, pilové plátky
Žebříky, Pracovní stoly a úložné prostory
Brusný materiál
Úvodní strana
/
Nábytek, Řešení pro kuchyně & obývací pokoje
/
Spojovací kování a podpěrky polic
/
Spojovací kování
/
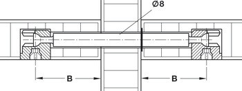
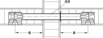
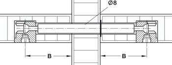
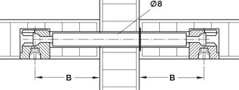
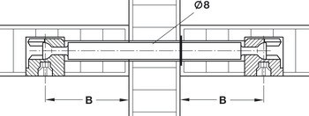
Dvojité táhlo, Ixconnect, Minifix 15
+ 26
Dvojité táhlo, Ixconnect, Minifix 15
-- vyberte --
Rozsah použití
-- vyberte --
Barva/povrchová úprava
-- vyberte --
Otvor pro závoru
Zrušit filtry
Varianty produktu
Dvojité táhlo, Ixconnect, Minifix 15
Rozsah použití: Pro oboustrannou montáž/středové panely,
Barva/povrchová úprava: prázdné,
Otvor pro závoru: 8,00 mm
Kód: 262.27.109
Skladem u dodavatele
-
+
532,00 Kč
za 100 ks bez DPH
Do seznamu
Tento produkt je k dispozici na
Online-Shopu JAF HOLZ
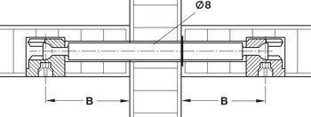
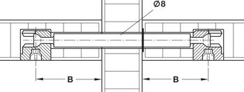
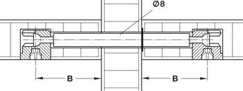
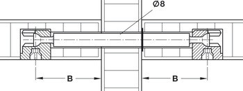
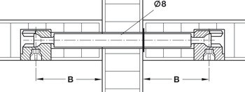
Dvojité táhlo, Ixconnect, Minifix 15
Rozsah použití: Pro oboustrannou montáž/středové panely,
Barva/povrchová úprava: prázdné,
Otvor pro závoru: 8.00 mm
Kód: 262.27.118
Skladem u dodavatele
-
+
538,00 Kč
za 100 ks bez DPH
Do seznamu
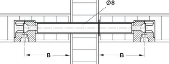
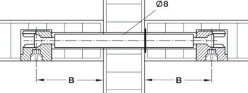
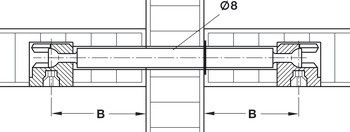
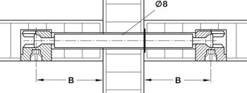
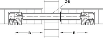
Dvojité táhlo, Ixconnect, Minifix 15
Rozsah použití: Pro oboustrannou montáž/středové panely,
Barva/povrchová úprava: Zinek,
Otvor pro závoru: 8,00 mm
Kód: 262.27.805
Skladem u dodavatele
-
+
582,00 Kč
za 100 ks bez DPH
Do seznamu
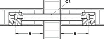
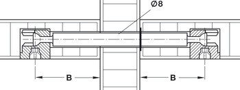
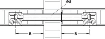
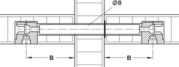
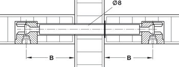
Dvojité táhlo, Ixconnect, Minifix 15
Rozsah použití: Pro oboustrannou montáž/středové panely,
Barva/povrchová úprava: prázdné,
Otvor pro závoru: 8,00 mm
Kód: 262.28.106
Skladem u dodavatele
-
+
578,00 Kč
za 100 ks bez DPH
Do seznamu
Dvojité táhlo, Ixconnect, Minifix 15
Rozsah použití: Pro oboustrannou montáž/středové panely,
Barva/povrchová úprava: prázdné,
Otvor pro závoru: 8,00 mm
Kód: 262.28.115
Skladem u dodavatele
-
+
612,00 Kč
za 100 ks bez DPH
Do seznamu
zobrazit více
Parametry
Rozsah použití
| Pro oboustrannou montáž/středové panely | Pro spoje desek na plocho
Materiál
Ocel
Barva/povrchová úprava
| Zinek | prázdné
Otvor pro závoru
| 8,00 mm | 7,00 mm | 8.00 mm
Můžete si dokoupit
Základní přípravek, Häfele Red Jig
8 358,49 Kč
7x vzorkovna Häfele v ČR
Otevřeno každý pracovní den od 7:00.
Pobočky
Katalogy
Nábytkové kování Häfele
Stavební katalog Häfele
Brožury Häfele
O portálu
Provozovatel portálu
Jak používat portál
Sortiment
Úchytky
Nábytkové kování
Vybavení kuchyní
Osvětlení a elektro
Posuvné kování
Stavební kování
Nářadí a příslušenství
Pobočky
Domašín
Vyškov
Ostrava
Česká Třebová
Rokycany
Brandýs n. L.
Vodňany
Česko
Slovensko
© 2024, JAF HOLZ spol. s r.o.
Profesionální e-shop na míru