




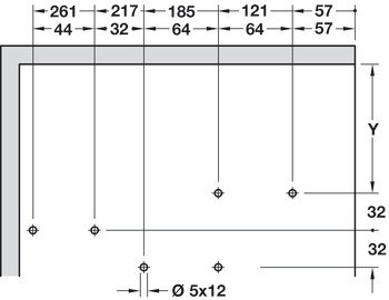
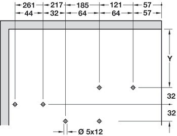
1 sada dvojitého zdvihacího výklopného kování (2 kusy, včetně čelního kování pro dřevěné výklopy nebo výklopy s širokým hliníkovým rámečkem, montážního návodu a papírové vrtací šablony)
1 sada krytek v šedé, bílé nebo antracitové barvě (2 kusy, levá/pravá)




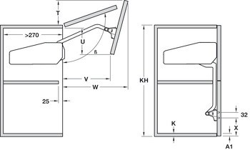
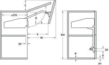
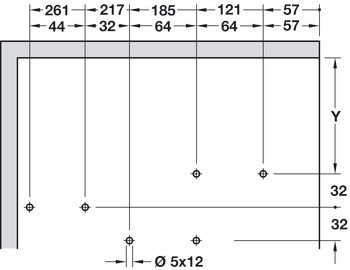
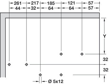
| Rozsah použití | Pro 2dílné výklopy dělené 1:1, ze dřeva nebo s hliníkovým rámečkem |
|---|---|
| Materiál | Kování: plast, ocel, Krytka: plast |
| Model | | I6fs | J6fs | K6fs | L6fs |
| Barva krytu | krytka: šedá, bílá nebo antracit |
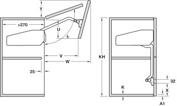
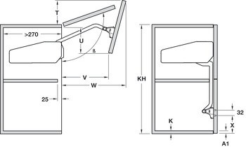
| Pro hmotnost víka | | 10 – 20 kg | 8.9 – 16.8 kg | 8.4 – 16.6 kg | 9.1 – 16.1 kg |
| Pro výšku korpusu | | 840 – 910 mm | 910 – 970 mm | 960 – 1,010 mm | 1000 – 1,040 mm |
| Materiál víka | Dřevo, Hliníkový rámeček |
| Barva/povrchová úprava | Kování: nikl |
| Typ výklopu | dvojdílné dělené 1:1 |