




1 hliníkový profil
1 tělo difuzoru


| Verze | | Matný difuzor | s difuzorem bílý opál pro povrchovou montáž, hranatý |
|---|---|
| Délka | | 2.500,00 mm |
| Barva/povrchová úprava | | Profil: Barva stříbra, elox; Difuzor: bílý opál |
| Poznámka k montáži | | Rozteč přídržných klipů max. 500 mm.Není vhodné pro použití s LED 3028. |
| Materiál | | Profil: Hliník; Difuzor: Plast |
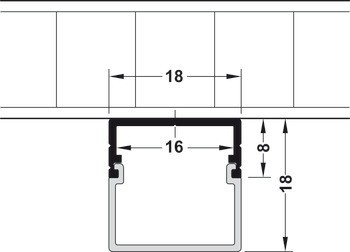
| Vnitřní šířka | | 16,00 mm |
| Šířka difuzoru | | 18,00 mm |
| Výška s difuzorem | | 18,00 mm | 17,00 mm |