









| Verze | | Bez funkce aretace v otevřené poloze | S funkcí aretace v otevřené poloze |
|---|---|
| Barva/povrchová úprava | | Černý, matný | leštěné | Barva stříbra, lakováno |
| Materiál | | Ocel | Mosaz |
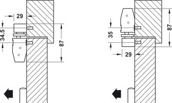
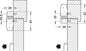
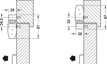
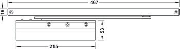
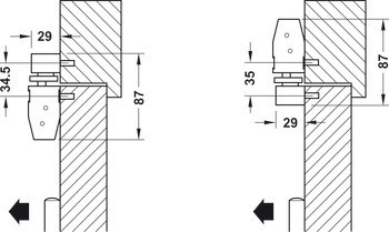
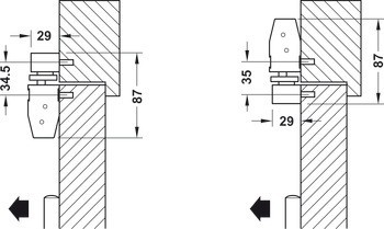
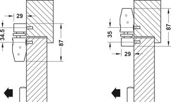
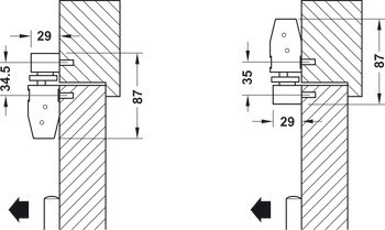
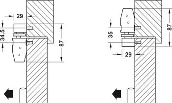
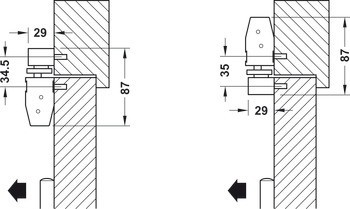
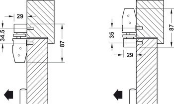
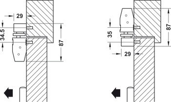
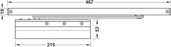
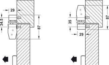
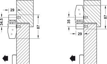
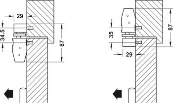
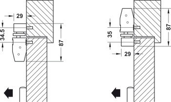
| Montáž | Pro použití na DIN levé a DIN pravé straně |
| Úhel otevření | ≤120 ° |
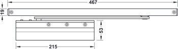
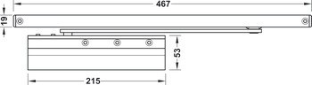
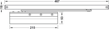
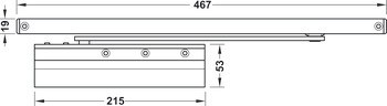
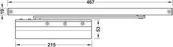
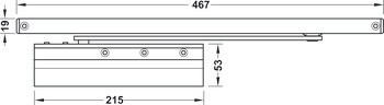
| Pro šířku dveří | ≤950 mm |
| Třída | | 3|8|3|1|1|3 | 3|8|3|0|1|3 |
| Pro počet dveří | 1křídlé dveře |
| Zavírací síla | 3 v souladu s EN 1154 |
| Způsob montáže | Standardní montáž (montáž dveřního křídla) na straně závěsů, Horní montáž (upevnění na nosník) na straně závěsů |
| Úhel aretace v otevřené poloze | ≤115 ° |