




1 L základní zavírač
1 BG kluzná lišta


| Verze | | S funkcí volného chodu |
|---|---|
| Barva/povrchová úprava | | Barva stříbra | Bílá, RAL 9016 |
| Verze produktu | | Design Contur |
| Zařízení pro nastavení | |
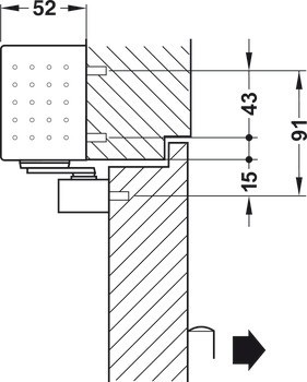
| Montáž | | Pro použití na DIN levé a DIN pravé straně |
| Úhel otevření | ≤180 ° |
| Pro šířku dveří | | ≤1,250 mm |
| Jmenovité napětí | | 24 V DC |
| Norma | | Certifikováno v souladu s EN 1154:1996/A1:2002 |
| Třída | | 4|8|2 – 5|1|1|3 |
| Pro počet dveří | | 1křídlé dveře |
| Zavírací síla | | 2–5 v souladu s EN 1154 |
| Způsob montáže | | Standardní montáž (montáž dveřního křídla) na straně závěsů |