






| Verze | | Bez mechanismu tlumení | s mechanismem tlumeného zavírání |
|---|---|
| Rozsah použití | Pro jednoduché dveře, dvojité dveře s rovným designem korpusu a pro rohová řešení |
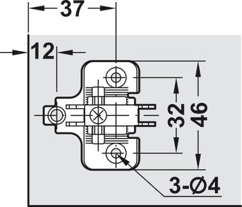
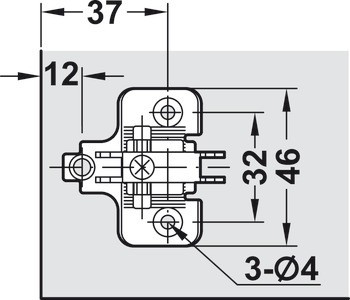
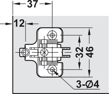
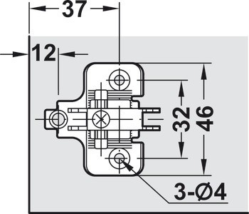
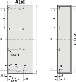
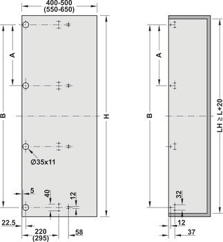
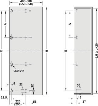
| Pro tloušťku dveří | 15 – 24 mm |
| Materiál | Ocel |
| Model | Swingfront 24 FB |
| Princip funkce | Dveře se vykývnou paralelně ke korpusu v malém poloměru |
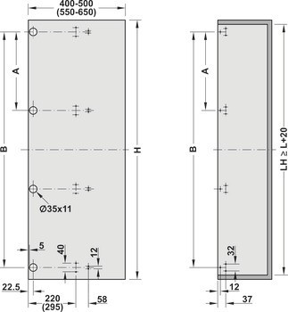
| Pro výšku dveří | 600 – 2,400 mm |
| Pro šířku dveří | 550 – 650 mm |