




1 kartotéka
2 podpěry kartotéky





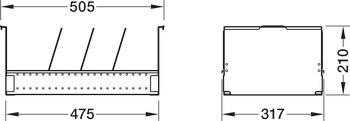
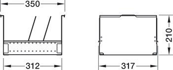
| Verze | Kartotéka s řadou vrtaných otvorů na boku v intervalu 20 mm pro podpěry kartotéky |
|---|---|
| Barva/povrchová úprava | | Bílý hliník, RAL 9006, Prášková barva, Prášková barva | Grafitově černá, RAL 9011, Prášková barva, Prášková barva |
| Rozsah použití | Pro nastavitelný rám na závěsné desky |
| Montáž | K zavěšení na nastavitelný rám na závěsné desky |
| Materiál | Ocel |
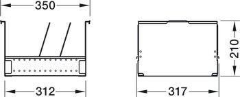
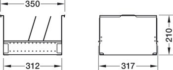
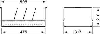
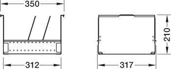
| Vhodné pro | Montážní hloubka 366 mm za panely / 386 mm za dveře | Montážní hloubka 509 mm za panely / 529 mm za dveře |
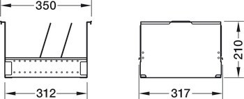
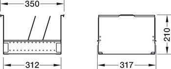
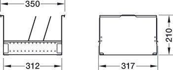
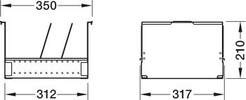
| Rozměry | 317 x 210 mm | 227 x 138 mm |
| Rozměr A | |
| Pro formát (vodorovný) | | A4 | A5 |