









| Verze | Samozavíracískvělá boční stabilizace zajištěna automatickým vedením na obou stranách a speciálně tvarovanými profilyvložená lišta s funkcí zajištění v zavřené pozicis mechanismem tlumeného zavírání a zajištěním proti nechtěnému vyjmutí, vedeno: 2 tichými kolečky6 koleček z polyamidu namontované v kluzném ložisku |
|---|---|
| Barva/povrchová úprava | Bílá, RAL 9010, Prášková barva, Prášková barva |
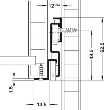
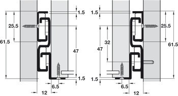
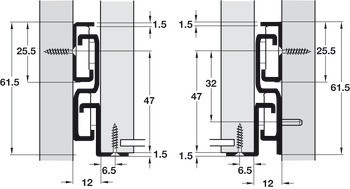
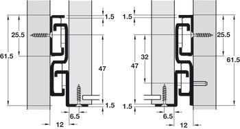
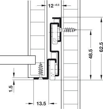
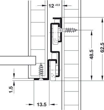
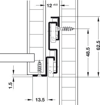
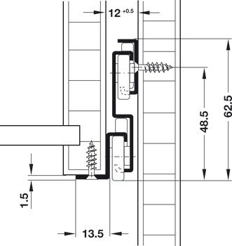
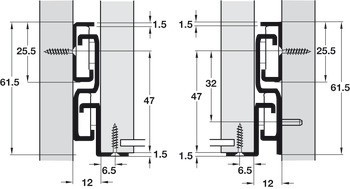
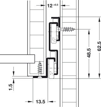
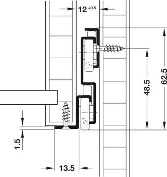
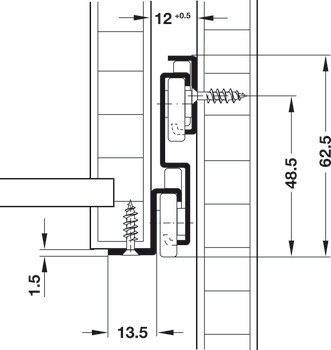
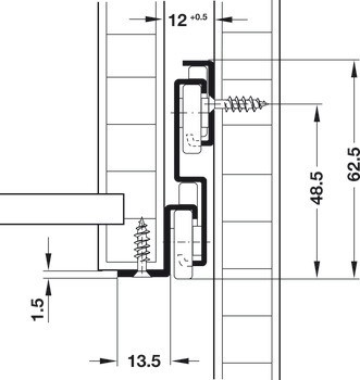
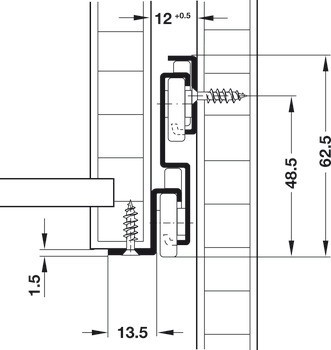
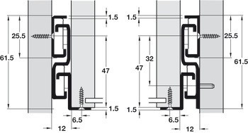
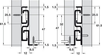
| Montáž | Na zásuvku, povrchová montáž |
| Materiál | Ocel |
| Nosnost | 50,00 kg | 50.00 kg |
| Způsob vysunutí | Plnovýsuv |
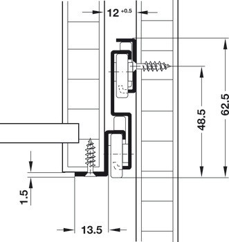
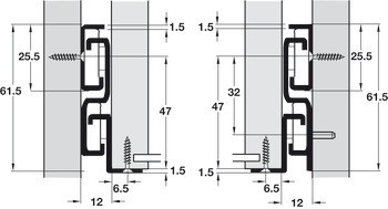
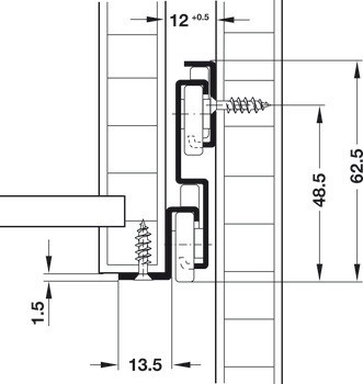
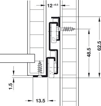
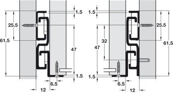
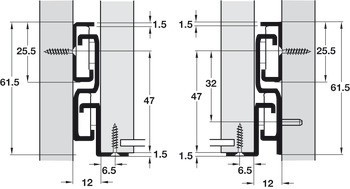
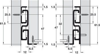
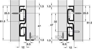
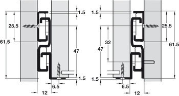
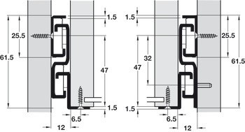
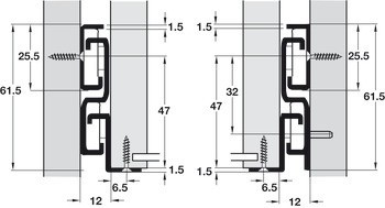
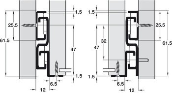
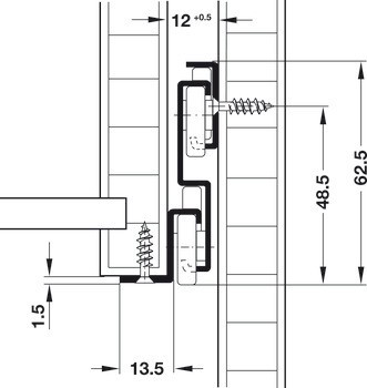
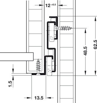
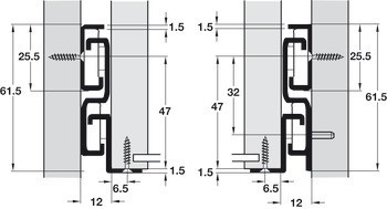
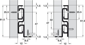
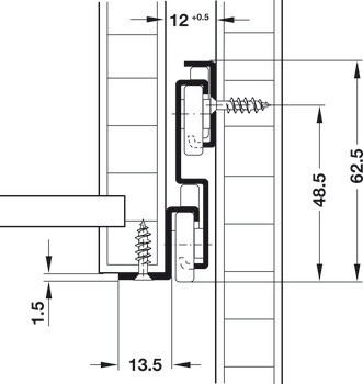
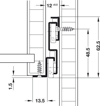
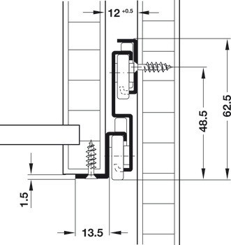
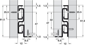
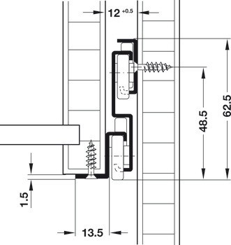
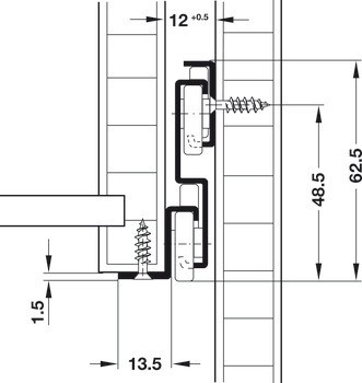
| Montážní délka | | 300,00 mm | 250,00 mm | 400,00 mm | 500,00 mm | 200,00 mm | 450,00 mm | 600.00 mm | 350,00 mm | 700,00 mm | 650,00 mm | 750,00 mm | 800,00 mm | 550.00 mm |
| Výsuvná délka | | 250,00 mm | 320,00 mm | 200,00 mm | 370,00 mm | 550,00 mm | 750,00 mm | 820,00 mm | 420,00 mm | 470,00 mm | 670,00 mm | 770,00 mm | 570.00 mm | 620.00 mm |
| Chod ložiskového válečku | 2 tichá kolečka|6 kolečka z polyamidu namontovaná v kluzném ložisku |
| Paniková funkce otevírání/zavírání | Mechanismus tlumeného zavírání|Samozavírací mechanismus |