




2 vozíky s mechanismem tlumeného zavírání
Upevňovací materiál



| Rozsah použití | Pro nástěnné skříňky/spodní skříňky, kredence |
|---|---|
| Poznámka k montáži | Verze vysoké skříně/kredence: namontujte vozík spodního pojezduVerze nástěnné skříňky: namontujte vozík horního pojezdu |
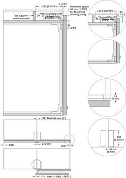
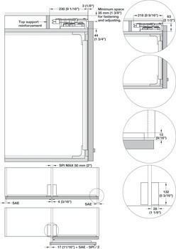
| Zařízení pro nastavení | Side adjustment ±2.5 mm, Height adjustment ±5 mm, Svisle ±5 mm, vodorovně ±2,5 mmpřední dveře: nahoře ±2 mm, dole ±2,5 mmpomocí vnitřního šestihranu |
| Pro tloušťku dveří | 16 – 30 mm |
| Pro materiál dveří | dřevo |
| Design skříně | nástěnné jednotky|kredence|spodní skříňky|například se 2 symetrickými dveřními křídly nebo pro jedny jednoduché dveře a zásuvky |
| Sada | Sada bez kolejnic |
| Pro výšku dveří | ≤800 mm |
| Poznámka ke hmotnosti dveří | Doporučujeme dodržet minimální hmotnost dveří. |
| Počet dveří | 2,00 | 2.00 |
| Mechanismus tlumeného zavírání | Systém dorazu s mechanismem tlumeného zavírání integrovaným v pojezdovém systému |
| Tloušťka dveří max. včetně úchytky | 40,00 mm | 40.00 mm |
| Nastavení výšky | ±5 mm |
| Pro šířku dveří | 520 – 836 mm |
| Pro hmotnost dveří | 5 – 10 kg |
| Materiál/Povrchová úprava | Hliník, Kolečka: Plast |
| Montáž | Vozík a kolejnice k přišroubování |
| Poloha pojezdu | Nahoře, Dole |
| Uložení vozíku | Kuličkové ložisko |
| Nastavení dveří přes | imbus |
| Pro světlou šířku korpusu | | 988 – 1,115 mm | 1116 – 1,371 mm | 1372 – 1,627 mm |