




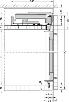
1 pojezdová kolejnice se 2 vozíky, horní
2 hnací hřídele dveří
1 spodní vodicí kolejnice
Upevňovací materiál


| Rozsah použití | Pro nástěnné skříňky | Pro korpusy s 2 dřevěnými posuvnými dveřmi, pro nástěnné jednotky |
|---|---|
| Zařízení pro nastavení | Side adjustment ±3 mm, Height adjustment ±4,5 mm, pomocí šroubu s šestihrannou hlavou |
| Pro tloušťku dveří | 18 – 30 mm |
| Design skříně | nástěnné jednotky|se 2 symetrickými dveřmi |
| Sada | Sada s kolejnicemi |
| Pro výšku dveří | ≤1200 mm |
| Poznámka ke hmotnosti dveří | Doporučujeme dodržet minimální hmotnost dveří. |
| Počet dveří | 2,00 | 2.00 |
| Mechanismus tlumeného zavírání | s mechanismem tlumeného zavírání |
| Tloušťka dveří max. včetně úchytky | 40,00 mm | 40.00 mm |
| Pro šířku dveří | | 896 mm | 969 mm |
| Pro hmotnost dveří | 7 – 20 kg |
| Poloha pojezdu | Nahoře |
| Nastavení dveří přes | šestihranný šroub |
| Pro tloušťku materiálu | ≥18 mm |
| Pro šířku korpusu | | 2000 mm | 1800 mm |
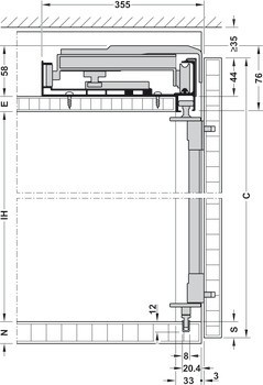
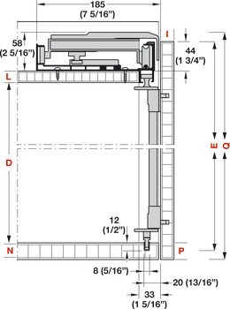
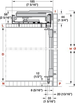
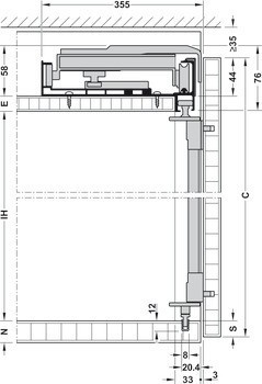
| Montážní hloubka nahoře | 185,00 mm | 185.00 mm |
| Vzdálenost od úchytky k hraně dveří min. | 10,00 mm | 10.00 mm |
| Přesah dveří max. | 46,50 mm | 46.50 mm |
| Pro světlou šířku korpusu | | 1762 mm | 1962 mm |
| Překrytí dveří na boční panel korpusu max. | 48,00 mm | 48.00 mm |