




1 nosný profil, hliník
1 pár pojezdových kolejnic
1 pojezdová kolejnice pro středový panel (pouze pro šířku dveří 1800 a 2400 mm)
Montážní materiál




| Rozsah použití | Pro 1 dřevěné posuvné dveře se svislým posuvem, např. na stěnách korpusů |
|---|---|
| Zařízení pro nastavení | Height adjustment ±3 mm, Výška ±3 mm |
| Pro materiál dveří | Dřevo |
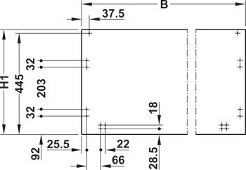
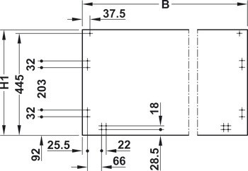
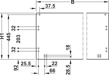
| Pro výšku korpusu | 882 – 1178 mm |
| Sada | Sada s kolejnicemi |
| Pro výšku dveří | 480 – 628 mm |
| Počet dveří | 1.00 |
| Nastavení výšky | ±3 mm |
| Pro šířku dveří | | 900 mm | 2400 mm | 1800 mm | 1200 mm |
| Pro hmotnost dveří | | 6 – 8 kg | 10 – 12 kg | 15 – 17 kg | 21 – 23 kg |
| Protizávaží | Není vyžadováno protizávaží |
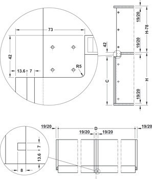
| Pro tloušťku bočního panelu | 19/20 mm |