




2 vozíky
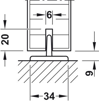
1 podlahové vedení
2 dorazy





| Verze | Bez mechanismu tlumeného dotahu |
|---|---|
| Rozsah použití | pro 1křídlé a 2křídlé posuvné dveře |
| Poznámka k montáži | Sada je vhodná pro použití s povrchovými úpravami v barvě stříbra, barvě nerez a černý elox. |
| Model | | 50E | 120E | 80E |
| Zařízení pro nastavení | Height adjustment -3/+4 mm, Výška +4/-3 mm |
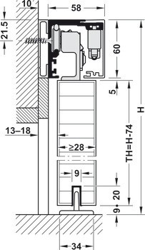
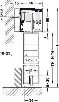
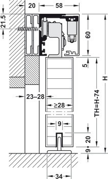
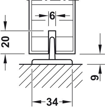
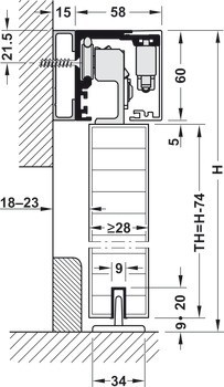
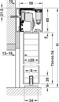
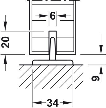
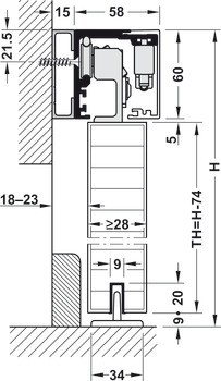
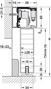
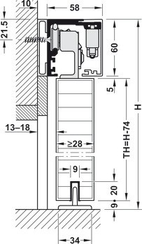
| Pro tloušťku dveří | 28 – 50 mm |
| Pro materiál dveří | Dřevo |
| Počet dveří v systému max. | 1 až 2 |
| Počet dveří | | 1,00 | 1.00 |
| Mechanismus tlumeného zavírání | | s mechanismem tlumeného dotahu na obou stranách | bez mechanismu tlumeného dotahu |
| Pro šířku dveří | | ≥530 mm | ≥630 mm | ≥500 mm |
| Pro hmotnost dveří | | ≤50 kg | ≤80 kg | ≤120 kg |
| Poloha pojezdu | Nahoře |
| Zpracování dveří | k přišroubování |
| Typ montáže | Montáž na strop, Montáž na stěnu |
| Norma | Certifikováno v souladu s EN 1527:2022 |