




2 vozíky
1 pojezdová kolejnice
2 dorazy (vlevo a vpravo)
1 montážní sada na stěnu
2 pojistky proti vyklopení
1 podlahové vedení
1 imbus klíč
1 vrták ⌀ 8,5 mm




| Rozsah použití | Pro 1 dveře | pro dřevěné dveřePro 1křídlé posuvné dveře |
|---|---|
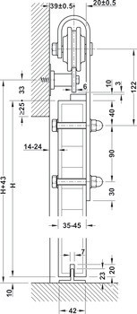
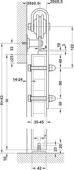
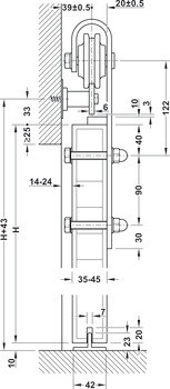
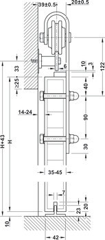
| Poznámka k montáži | Pojezdovou kolejnici lze zkrátit na místě realizace. Hrana řezu musí být poté upravena (v případě černé kolejnice přizpůsobený podklad a barva). Rozměry vrtání pro montáž pojezdové kolejnice 2000 mm na stěnu: 100/450/450/450/450/100, 5krát předvrtánaRozměry vrtání pro montáž pojezdové kolejnice 2500 mm na stěnu: 125/450/450/450/450/450/125, 6krát předvrtána |
| Model | 100S |
| Zařízení pro nastavení | Není výškově nastavitelné |
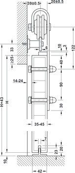
| Pro tloušťku dveří | 35 – 45 mm |
| Funkčnost | s pojistkou proti vyklopení |
| Pro materiál dveří | dřevo |
| Počet dveří v systému max. | 1 |
| Počet dveří | 1,00 | 1.00 |
| Pro šířku dveří | 750 – 1,000 mm | 1001 – 1,250 mm |
| Pro hmotnost dveří | ≤100 kg |
| Materiál/Povrchová úprava | Ocel, Grafitově černá, prášková barva | Nerez, matný |
| Poloha pojezdu | Nahoře |
| Zpracování dveří | k přišroubování |
| Montáž | Pozitivní upnutí dveřního křídla |
| Vlastnosti vozíku | Vozík s pojistkou proti vyklopení |
| Typ montáže | Montáž na stěnu |
| Poznámka k šířce dveří | v závislosti na pojezdové kolejnici |
| Délka pojezdové kolejnice | | 2.000,00 mm | 2.500,00 mm | 2'500.00 mm |