




1 pojezdová kolejnice
1 vozík
2 mechanismy tlumeného dotahu
1 vodicí kolejnice
1 podlahové vedení
1 sada vodicích koleček
1 sada koncových krytek (1 pár černý, 1 pár v barvě stříbra)
2 distanční podložky
1 doraz montovaný na podlahu (volitelně)
2 imbus klíče
1 stranový klíč


| Rozsah použití | Pro 1 dveře |
|---|---|
| Poznámka k montáži | Zajistěte, aby podlaha byla v roviněPro měkké podlahy je vyžadována spodní kolejnicePřipravte konstrukci stěny pro horní kolečko |
| Model | 80-M |
| Zařízení pro nastavení | Vzdálenost dveří od stěny +4 mm (nastavení na obou stranách, pro kompenzaci nerovných stěn)výškové ±2 mm |
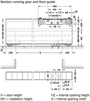
| Pro tloušťku dveří | 35 – 42 mm |
| Počet dveří v systému max. | 1 |
| Počet dveří | 1,00 | 1.00 |
| Pro šířku dveří | 800 – 1100 mm | 1101 – 1800 mm |
| Pro hmotnost dveří | ≤80 kg |
| Materiál/Povrchová úprava | elox |
| Poloha pojezdu | Nahoře |
| Zpracování dveří | S výřezem|k přišroubování |
| Vhodné pro | Tvrdé podlahy (laminát, PVC, dlaždice) a měkké podlahy (koberec, korek - použijte pouze s podlahovou lištou)|Soukromý obytný prostor |
| Vlastnosti vozíku | skrytý pojezdový mechanismus integrovaný ve dveřích |
| Typ montáže | Montáž na stěnu |
| Délka pojezdové kolejnice | | 1.100,00 mm | 1,800.00 mm |