




2 vozíky
Filcové kluzné proužky
2 vodící žebra
2 dorazy
montážní materiál
2 sady plastových distančních dílů pro nastavení výšky

| Rozsah použití | Pro 1křídlé a 2křídlé posuvné dveře |
|---|---|
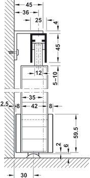
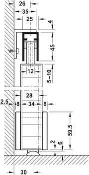
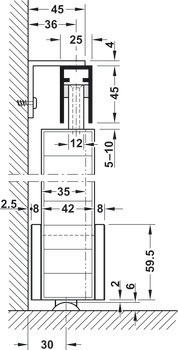
| Poznámka k montáži | | Vzdálenost dveří od stěny je vždy stejná, bez ohledu na tloušťku dveří.Pro zvětšení vzdálenosti od stěny, např. pro soklové lišty, použijte velké montážní konzole na stěnu. |
| Model | | 150 U segmentový vozík |
| Zařízení pro nastavení | | Height adjustment: 3 mm, Vzdálenost vodicí kolejnice od stěny +6 mm, výška: s nástěnným držákem ±8 mm, v oblasti kolečka +4,5 mm |
| Pro tloušťku dveří | | 35 – 42 mm |
| Pro materiál dveří | | dřevo |
| Počet dveří v systému max. | | 1 až 2 |
| Počet dveří | | 1,00 |
| Pro hmotnost dveří | | ≤150 kg |
| Materiál/Povrchová úprava | | Kolečko: Nerez |
| Poloha pojezdu | Dole |
| Zpracování dveří | | S výřezem |
| Montáž | | Pozitivní upnutí (bez nářadí) |
| Typ montáže | | Montáž na strop, Montáž na stěnu |
| Klasifikace v souladu s EN 1527 | | -|6|3|0|1|4|-|1|3 |
| Norma | | Certifikováno v souladu s EN 1527:2013 |