




2 Vozíky
2 dorazy
1 spodní vedení

| Verze | | se sadou dveřního dorazu a podlahovým vedením |
|---|---|
| Rozsah použití | Pro 1 dveře |
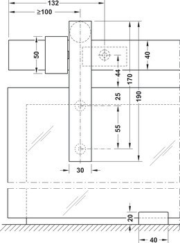
| Poznámka k montáži | | pro vnitřní šířku otvoru:s pojezdovou kolejnicí 1804 mm: 750–900 mm,s pojezdovou kolejnicí 2104 mm: 910–1000 mm,s pojezdovou kolejnicí vyrobenou na míru: variabilní šířka otvoru |
| Model | | 80W |
| Zařízení pro nastavení | | Height adjustment: -3 – 3 mm, Nastavitelná výška dveří ±3 mm |
| Pro materiál dveří | | sklo |
| Počet dveří v systému max. | | 1 až 2 |
| Počet dveří | | 1.0 |
| Pro šířku dveří | | 750 – 1,050 mm |
| Pro hmotnost dveří | | ≤80 kg |
| Poloha pojezdu | Nahoře |
| Zpracování dveří | | S přípravou skla |
| Montáž | | Zavěšení s přiléhajícím spojením přírubou na sklo |
| Vlastnosti vozíku | | Vozík s pojistkou proti vyklopení |
| Typ montáže | | Montáž na stěnu |
| Pro typ skla | | Tvrzené bezpečnostní sklo (ESG)|Vrstvené bezpečnostní sklo (VSG) |
| Pro tloušťku skla s tvrzeným bezpečnostním sklem (ESG) | | 8–10,7 mm |
| Pro tloušťku skla s vrstveným bezpečnostním sklem (VSG) | | 8–10,7 mm |
| Poznámka k šířce dveří | | s pojezdovou kolejnicí 1804 mm: 800–950 mm,s pojezdovou kolejnicí 2104 mm: 960–1050 mm,s pojezdovou kolejnicí vyrobenou na míru: variabilní šířka dveří |