




1 vozík s 1 nábytkovým závěsem pro levé dveře
4 závěsy ke spojení panelů





| Verze | se standardním závěsem ke spojení panelů bez krytky | se standardním závěsem ke spojení panelůbez krytky | s nastavitelným závěsem ke spojení panelůbez krytky | S nastavitelným závěsem ke spojení panelůs šedou krytkou | S nastavitelným závěsem ke spojení panelů s šedou krytkou |
|---|---|
| Rozsah použití | pro dřevěné dveře,pro dveře s hliníkovým rámem s šířkou rámečku > 50 mm |
| Montáž | | Pravé | Levé | Levé a pravé jako sada |
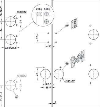
| Model | 50A | 25 A |
| Zařízení pro nastavení | Nastavitelné na závěsech |
| Pro tloušťku dveří | ≥16 mm |
| Montáž | | Levé a pravé | Pravé | Levé |
| Pro materiál dveří | dřevo|Hliník |
| Sada | Sada bez kolejnic |
| Pro výšku dveří | ≤3,000 mm | ≤2,100 mm |
| Poznámka ke hmotnosti dveří | 12,5/25 kg (25/50 kg na pár dveří) |
| Pro šířku dveří | | ≤600 mm | ≤450 mm |
| Pro hmotnost dveří | | ≤50 kg | ≤25 kg |
| Materiál/Povrchová úprava | Kolečka: Plast |
| Poloha pojezdu | Nahoře |
| Uložení vozíku | Kuličkové ložisko |
| Nastavení dveří přes | Závěsy |
| Vlastnosti vozíku | 4 kolečka |
| Poznámka k šířce dveří | 25 kg: ≤450 mm,50 kg: ≤600 mm |