




2 vozíky
2 vedení
2 dorazy dveřního křídla s nacvakávacím dveřním dorazem
4 dorazy (2 pro základní panel 19 mm, 2 pro základní panel 25 mm)



| Rozsah použití | Pro 1 dveře |
|---|---|
| Zařízení pro nastavení | Height adjustment ±2 mm, ±2 mm na vozíku pomocí nastavovacího kolečka |
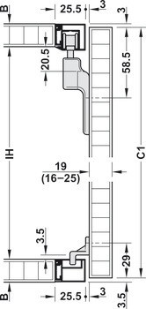
| Pro tloušťku dveří | 16 – 25 mm |
| Pro materiál dveří | Dřevo |
| Design skříně | police |
| Sada | Sada bez kolejnic |
| Poznámka ke hmotnosti dveří | Doporučujeme dodržet minimální hmotnost dveří. |
| Počet dveří | 1,00 | 1.00 |
| Mechanismus tlumeného zavírání | | s mechanismem tlumeného dotahu na jedné straně | s mechanismem tlumeného dotahu na obou stranách | bez mechanismu tlumeného dotahu, s nacvakávacím dveřním dorazem |
| Nastavení výšky | ±2 mm |
| Pro šířku dveří | ≥550 mm | ≥250 mm | ≥350 mm |
| Pro hmotnost dveří | 13 – 20 kg |
| Materiál/Povrchová úprava | Vozík: Plast, Vedení: Plast, Montážní podložka: Zinková slitina, Kolečka: Plast, Osy: Ocel |
| Montáž | Vozík bez nářadí (systém rychlomontáže)|Montážní podložka k přišroubování |
| Poloha pojezdu | Nahoře |
| Počet koleček | 4,00 | 4.00 |
| Uložení vozíku | Kluzné ložisko |
| Nastavení dveří přes | nastavitelné kolečko |
| Tloušťka základního panelu | 19 nebo 25 mm |