




2 vozíky
2 dveřní dorazy s nacvakávacím dveřním dorazem
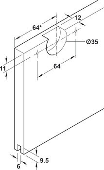
1 revizní koncovka
1 vedení
1 montážní pomůcka





| Rozsah použití | | Pro 2 dveře | Pro 1 dveře |
|---|---|
| Zařízení pro nastavení | Výška ±2 mm na vozíku pomocí nastavovacího kolečka |
| Pro tloušťku dveří | 16 – 19 mm |
| Pro materiál dveří | Dřevo |
| Design skříně | s tenkými horními panely korpusu |
| Poznámka ke hmotnosti dveří | Doporučujeme dodržet minimální hmotnost dveří. |
| Počet dveří | | 2.00 | 1.00 |
| Mechanismus tlumeného zavírání | | s mechanismem tlumeného dotahu na jedné straně | s mechanismem tlumeného dotahu na obou stranách | bez mechanismu tlumeného dotahu, s nacvakávacím dveřním dorazem |
| Pro šířku dveří | ≥550 mm | ≥370 mm | ≥250 mm |
| Pro hmotnost dveří | 21 – 40 kg |
| Materiál/Povrchová úprava | Tělo: Zinková slitina, Vozík: Zinková slitina, Vedení: Plast, Kolečka: Plast, Osy: Ocel |
| Montáž | Vedení k nalisování do vrtaného otvoru|Tělo k přišroubování|Vozík bez nářadí (systém rychlomontáže) |
| Poloha pojezdu | Nahoře |
| Počet koleček | 4.00 |
| Uložení vozíku | Kuličkové ložisko |
| Nastavení dveří přes | nastavitelné kolečko |