




6 vozíky
6 vedení
6 horních nacvakávacích dveřních dorazů
4 dorazy, spodní





| Rozsah použití | | Pro 2 dveře | Pro 3 dveře |
|---|---|
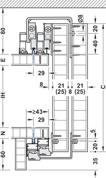
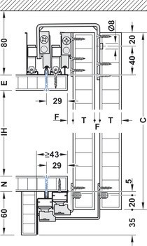
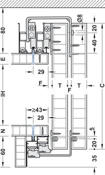
| Pro tloušťku dveří | | 19 – 21 mm | 22 – 28 mm |
| Pro tloušťku skla | 4 mm |
| Pro materiál dveří | | Dřevo | Dřevo, Hliníkový rámeček |
| Design skříně | šatní skříně |
| Sada | Sada bez kolejnic |
| Počet dveří | | 3,00 | 2,00 | 2.00 | 3.00 |
| Mechanismus tlumeného zavírání | | s mechanismem tlumeného dotahu na obou stranách | bez mechanismu tlumeného dotahu, s nacvakávacím dveřním dorazem |
| Pro šířku dveří | | ≥700 mm | ≥650 mm |
| Pro hmotnost dveří | 20 – 80 kg |
| Materiál/Povrchová úprava | Vozík: Ocel, Vedení: Ocel, Kolečka: Plast |
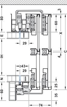
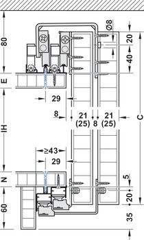
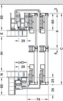
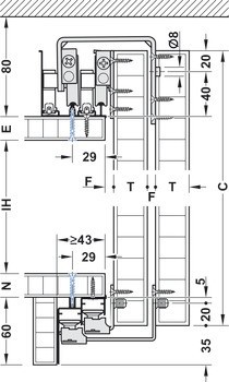
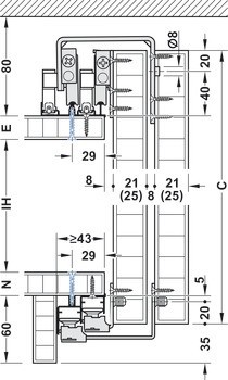
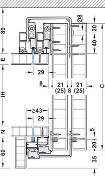
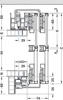
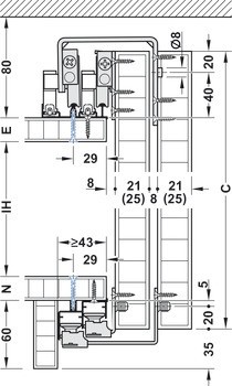
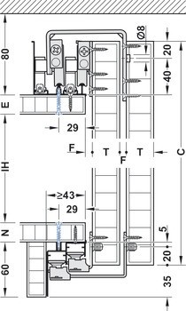
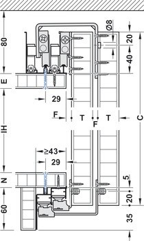
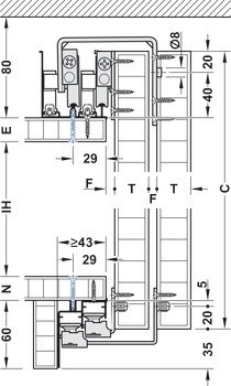
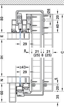
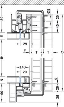
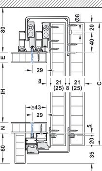
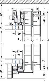
| Montáž | Pojezdová kolejnice k přišroubování ke korpusu|Vozík a vedení k přišroubování na dveřní křídlo |
| Poloha pojezdu | Nahoře |
| Počet koleček | 1,00 | 1.00 |
| Uložení vozíku | Kuličkové ložisko |
| Poznámka k šířce dveří | Tloušťka dveří pro dřevěné dveřeskleněný panel pro dveře s hliníkovým rámem: 4 mmpro dveře s hliníkovým rámem s dřevěným panelem: 10 mm |