




2 vozíky
1 rovné prahové podlahové vedení
2 dveřní dorazy s nacvakávacím dveřním dorazem
Montážní materiál


| Verze | | s horním vymezovacím profilem pro sklo a pohledovým spodním vedením s nulovou tolerancí | s horním a spodním vymezovacím profilem pro sklo a skrytým spodním vedením s nulovou tolerancí |
|---|---|
| Rozsah použití | | Pro 1 dveře |
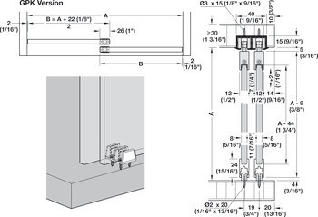
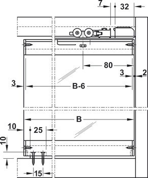
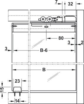
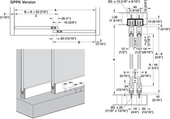
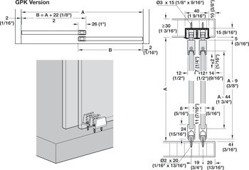
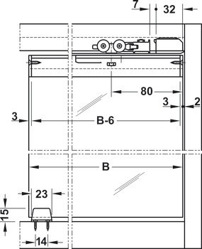
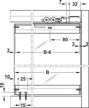
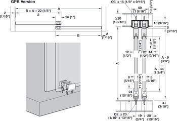
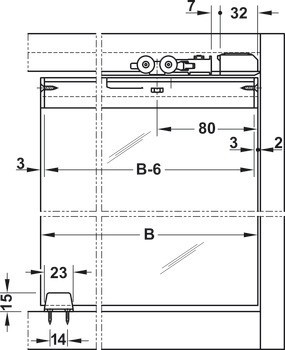
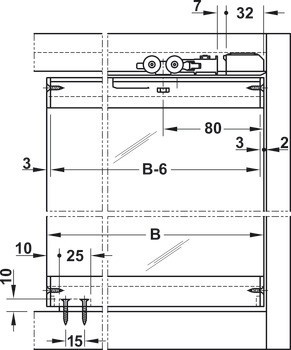
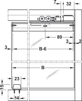
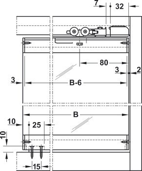
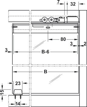
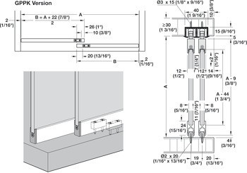
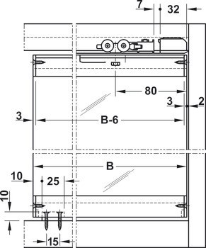
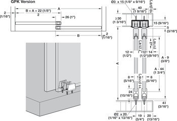
| Zařízení pro nastavení | | Height adjustment ±2 mm, Výška ±2 mm |
| Pro tloušťku skla | | 6–8 mm |
| Design skříně | | s posuvnými dveřmi bez vrtání do skla |
| Sada | | Sada bez kolejnic |
| Pro výšku dveří | | ≤2000 mm |
| Počet dveří v systému max. | |
| Počet dveří | | 1,00 |
| Mechanismus tlumeného zavírání | | bez mechanismu tlumeného dotahu, s nacvakávacím dveřním dorazem |
| Pro šířku dveří | | ≤1000 mm |
| Pro hmotnost dveří | | ≤36 kg |
| Materiál/Povrchová úprava | | Vozík: Zinková slitina, Zavěšení: Zinková slitina, Vedení: Zinková slitina, Vedení: Plast, Kolečka: Plast, Osy: Ocel |
| Poloha pojezdu | | Nahoře |
| Počet koleček | | 4,00 |
| Uložení vozíku | | Kluzné ložisko |
| Zpracování dveří | | Bez přípravy skla |
| Typ otevírání |