




4 vozíky
4 dveřních dorazů (2 s nacvakávacím dveřním dorazem/2 dorazy)
2 vedení
1 vložený doraz
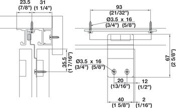
1 montážní materiál



| Rozsah použití | Pro 2 dveře | Pro 3 dveře |
|---|---|
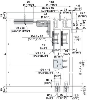
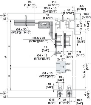
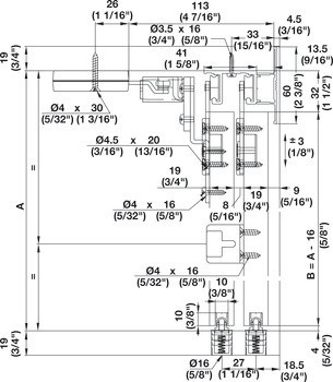
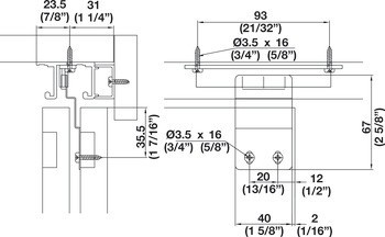
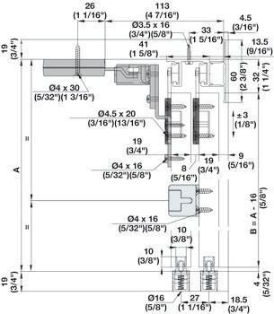
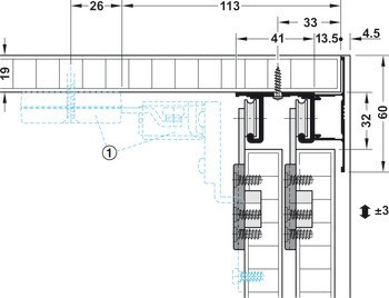
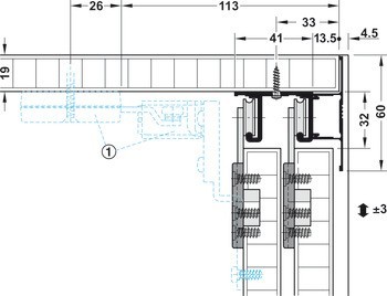
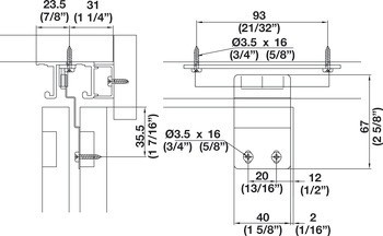
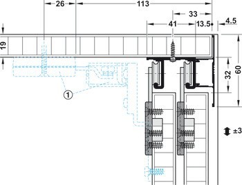
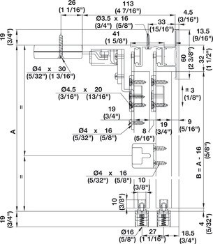
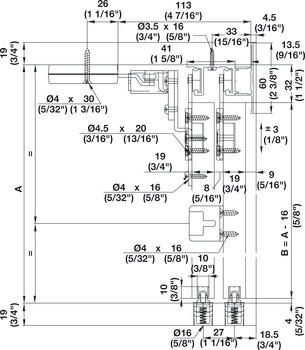
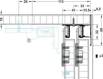
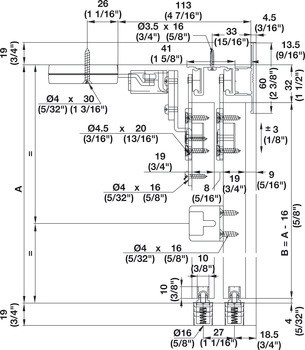
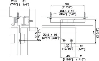
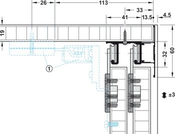
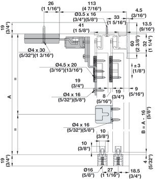
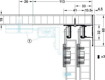
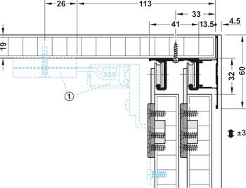
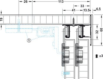
| Zařízení pro nastavení | Height adjustment ±3 mm, ±3 mm na vozíku pomocí excentrického šroubu |
| Pro tloušťku dveří | 19 mm |
| Sada | Sada bez kolejnic |
| Pro výšku dveří | ≤2200 mm |
| Počet dveří | | 3,00 | 2,00 |
| Mechanismus tlumeného zavírání | bez mechanismu tlumeného dotahu, s nacvakávacím dveřním dorazem |
| Pro šířku dveří | ≤1200 mm |
| Pro hmotnost dveří | | ≤20 kg | ≤35 kg |
| Materiál/Povrchová úprava | Vozík: Ocel, Vedení: Plast, Kolečka: Plast, Osy: Ocel |
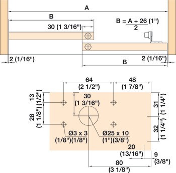
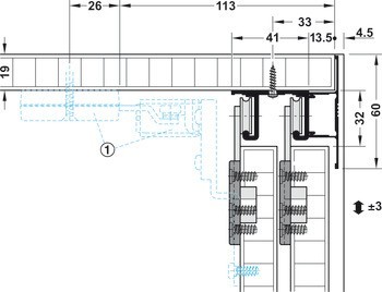
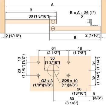
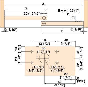
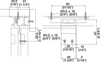
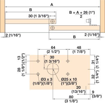
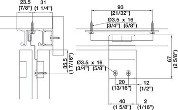
| Montáž | Vedení k nalisování do vrtaného otvoru|Vozík k přišroubování|Bezvůlové podlahové vedení předepnuté pružinou k nalisování |
| Poloha pojezdu | Nahoře |
| Počet koleček | | 1,00 | 2,00 |
| Uložení vozíku | Kuličkové ložisko |
| Nastavení dveří přes | excentrický šroub |