




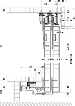
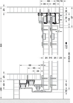
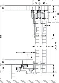
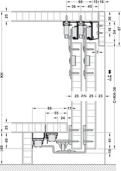
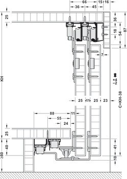
4 vozíky
4 vedení
8 dorazy dveřního křídla s nacvakávacím dveřním dorazem
4 koncovky kolejnice
Montážní materiál


| Verze | S nacvakávacím dveřním dorazem |
|---|---|
| Rozsah použití | | Pro 2 dveře | Pro 3 dveře |
| Zařízení pro nastavení | Height adjustment -2/+4 mm, s excentrickým šroubem na vozíku |
| Pro tloušťku dveří | 25 mm |
| Pro materiál dveří | Dřevo |
| Pro výšku dveří | ≤2600 mm |
| Počet dveří | 3,00 | 2.00 |
| Mechanismus tlumeného zavírání | bez mechanismu tlumeného dotahu, s nacvakávacím dveřním dorazem |
| Nastavení výšky | -2/+4 mm |
| Pro šířku dveří | ≤1400 mm |
| Pro hmotnost dveří | ≤65 kg |
| Dveřní doraz | Horní nacvakávací dveřní doraz a mechanismus tlumeného dotahu |
| Materiál/Povrchová úprava | Vozík: Ocel, Vedení: Ocel, Kolečka: Plast |
| Montáž | Vozík a vedení k přišroubování|Beznářaďová montáž a demontáž dveřních křídel |
| Poloha pojezdu | Nahoře |
| Počet koleček | 1,00 | 1.00 |
| Uložení vozíku | Kuličkové ložisko |