




4 vozíky
8 dveřních dorazů (2 s nacvakávacím dveřním dorazem/6 dorazy)
4 vedení
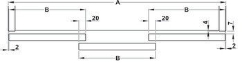
6 panelů k nacvaknutí


| Verze | | S nacvakávacím dveřním dorazem |
|---|---|
| Rozsah použití | | Pro 2 dveře | Pro 3 dveře |
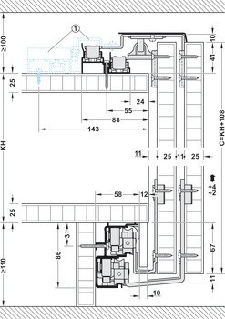
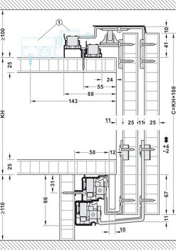
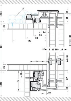
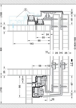
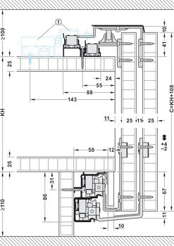
| Poznámka k montáži | | před instalací dvojité horní vodicí kolejnice: vložte horní dveřní dorazy |
| Zařízení pro nastavení | | výškové nastavení +4/–2 mm na vozíku pomocí excentrického šroubu |
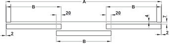
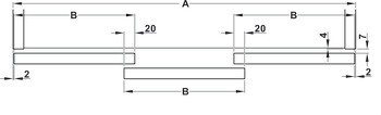
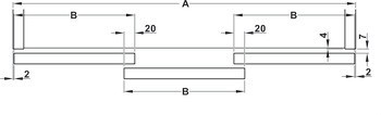
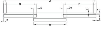
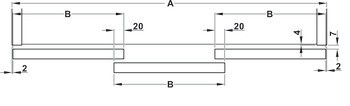
| Pro tloušťku dveří | | 25 mm |
| Modely | |
| Pro materiál dveří | Dřevo |
| Pro výšku dveří | ≤2600 mm |
| Počet dveří | 2.00 | 3.00 |
| Mechanismus tlumeného zavírání | bez mechanismu tlumeného dotahu, s nacvakávacím dveřním dorazem |
| Pro šířku dveří | ≤1400 mm |
| Pro hmotnost dveří | ≤65 kg |
| Dveřní doraz | | Spodní nacvakávací dveřní doraz nebo mechanismus tlumeného dotahu, pro nasunutí do pojezdové kolejnice |
| Materiál/Povrchová úprava | Vozík: Ocel, Vedení: Ocel, Kolečko: Plast |
| Montáž | Vozík a vedení k přišroubování|Beznářaďová montáž a demontáž dveřních křídel |
| Poloha pojezdu | Dole |
| Počet koleček | 1.00 |
| Uložení vozíku | Kuličkové ložisko |