




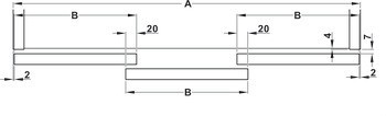
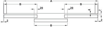
4 vozíky
8 dveřních dorazů (2 s nacvakávacím dveřním dorazem/6 dorazy)
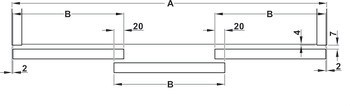
4 vedení
6 panelů k nacvaknutí




| Verze | S nacvakávacím dveřním dorazem |
|---|---|
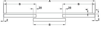
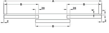
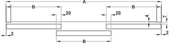
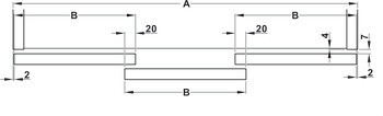
| Rozsah použití | | Pro 2 dveře | Pro 3 dveře |
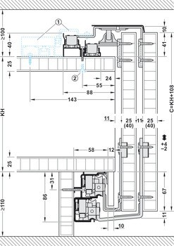
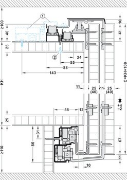
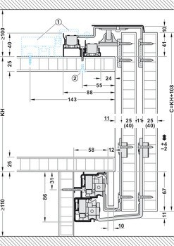
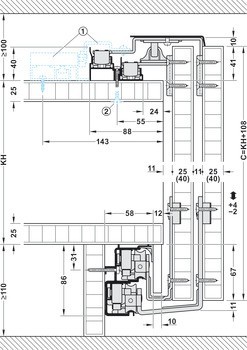
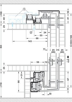
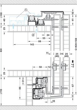
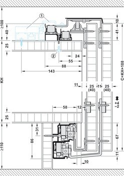
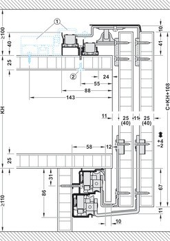
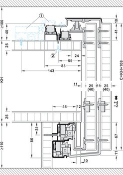
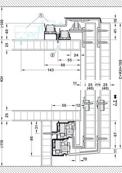
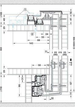
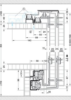
| Poznámka k montáži | před instalací dvojité horní vodicí kolejnice: vložte horní dveřní dorazy |
| Zařízení pro nastavení | výškové nastavení +4/–2 mm na vozíku pomocí excentrického šroubu |
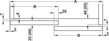
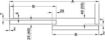
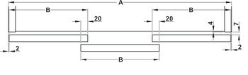
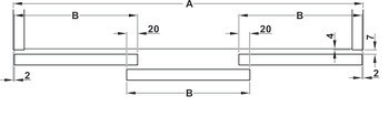
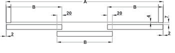
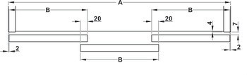
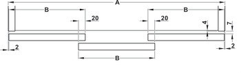
| Pro tloušťku dveří | 25 mm | 40 mm |
| Pro výšku dveří | ≤2800 mm |
| Mechanismus tlumeného zavírání | bez mechanismu tlumeného dotahu, s nacvakávacím dveřním dorazem |
| Pro šířku dveří | ≤1600 mm |
| Pro hmotnost dveří | ≤80 kg |
| Dveřní doraz | Spodní nacvakávací dveřní doraz nebo mechanismus tlumeného dotahu, pro nasunutí do pojezdové kolejnice |
| Materiál/Povrchová úprava | Vozík: Ocel, Vedení: Ocel, Kolečko: Plast |
| Montáž | Vozík a vedení k přišroubování|Beznářaďová montáž a demontáž dveřních křídel |
| Poloha pojezdu | Dole |
| Počet koleček | 1.00 |
| Uložení vozíku | Kuličkové ložisko |