




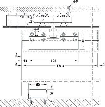
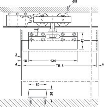
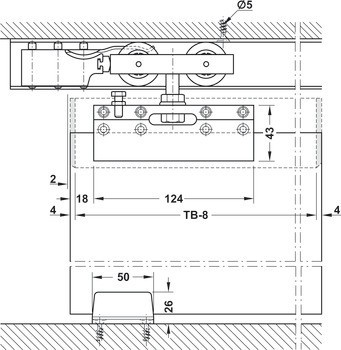
2 vozíky
2 upínací patky se závěsným šroubem M10
2 dorazy kolejnice s nastavitelnou přídržnou pružinou
1 gumový doraz na stěnu
1 rovné prahové podlahové vedení, pro tloušťku skla 8, 10, 12 (12,7) mm

| Rozsah použití | Pro 1 dveře |
|---|---|
| Model | 80 GS bez mechanismu tlumeného dotahu s dorazem kolejnice na obou stranách |
| Zařízení pro nastavení | Výškové nastavení |
| Pro materiál dveří | sklo |
| Pro výšku dveří | ≤4,000 mm |
| Počet dveří v systému max. | 1 až 2 |
| Počet dveří | 1,00 |
| Mechanismus tlumeného zavírání | bez mechanismu tlumeného dotahu |
| Pro šířku dveří | ≤3,000 mm |
| Pro hmotnost dveří | ≤80 kg |
| Poloha pojezdu | Nahoře |
| Zpracování dveří | Bez přípravy skla |
| Montáž | Zavěšení pomocí upínací patky |
| Typ montáže | Montáž na strop |
| Klasifikace v souladu s EN 1527 | -|6|1|-|1|0|-|1|3 |
| Pro typ skla | Tvrzené bezpečnostní sklo (ESG) |
| Pro tloušťku skla s tvrzeným bezpečnostním sklem (ESG) | 8 mm, 10 mm, 12 mm, 12.7 mm |
| Norma | Certifikováno v souladu s EN 1527:2013 |