




4 vozíky
4 vedení
2 stabilizační bloky
2 nacvakávací dveřní dorazy


| Verze | S nacvakávacím dveřním dorazem |
|---|---|
| Rozsah použití | | Pro 2 dveře | Pro 3 dveře |
| Poznámka k montáži | Umožňuje synchronní otevírání |
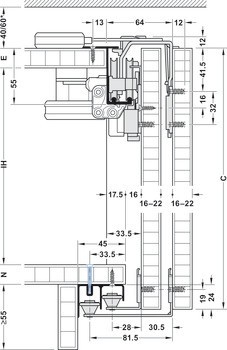
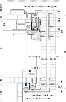
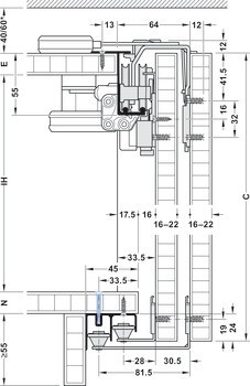
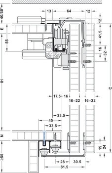
| Zařízení pro nastavení | Výška ±2 mm na obou stranách |
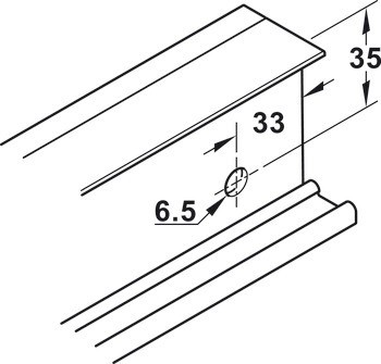
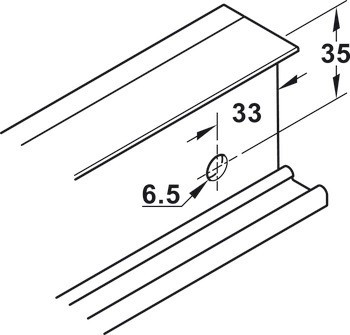
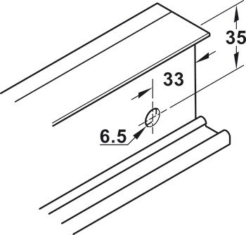
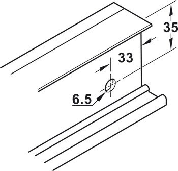
| Pro tloušťku dveří | 16 – 22 mm |
| Počet dveří | | 3,00 | 2,00 |
| Mechanismus tlumeného zavírání | bez mechanismu tlumeného dotahu, s nacvakávacím dveřním dorazem |
| Pro hmotnost dveří | 20 – 50 kg |
| Dveřní doraz | Horní zacvakávací dveřní doraz, pro nasunutí do pojezdové kolejnice |
| Materiál/Povrchová úprava | Ocel, Plast |
| Montáž | Technika klipu |
| Poloha pojezdu | Nahoře |
| Zpracování dveří | k přišroubování |