





| Materiál | Dřevo |
|---|---|
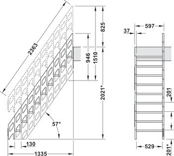
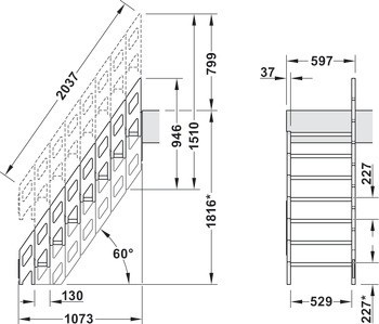
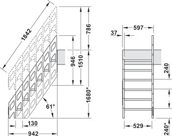
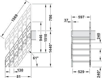
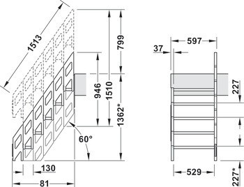
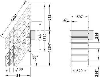
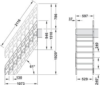
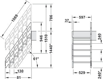
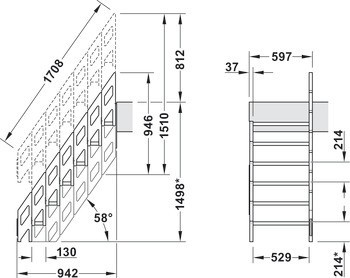
| Poznámka k montáži | Výška lícnice musí být přizpůsobena výšce prvního stupně. Řez musí být proveden v úhlu 90° k podélné hraně (více informací najdete v montážním návodu v online obchodu). |
| Povrchová úprava | Neupravená |
| Rozměry (Š x V x H) | 520 x 30.6 x 131.5 mm |