




1 pár otočných kování
2 kusy montážních konzolí na dveře


| Verze | | s mechanismem tlumeného zavírání |
|---|---|
| Barva/povrchová úprava | | Barva stříbra, prášková barva |
| Rozsah použití | | Při otevření se dveře vykývnou dopředu a poté do strany, tím je umožněn neomezený přístup dovnitř skřínělze použít pro jednoduché dveře, dvojité dveře s rovným designem korpusu a pro rohová řešení |
| Materiál | | Zinková slitina |
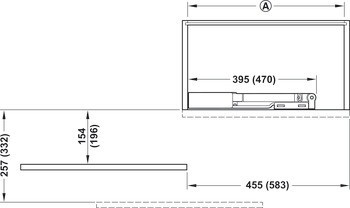
| Světlá výška korpusu | | 2.576,00 mm |
| Hmotnost dveří max. | | 20,00 kg |
| Světlá šířka korpusu | | 398 mm | 475 mm |
| Vzdálenost otevření max. | | 450,00 mm | 600,00 mm |