




1 Příruba
Distanční podložky 2 x 1,0 mm, 2 x 2,0 mm, 2 x 3,0 mm

| Barva/povrchová úprava | | Zinek |
|---|---|
| Rozsah použití | | Pro všechny závěsy objektových dveří Simonswerk VARIANT VXpro dřevěné obložkové zárubněpro falcové a bezfalcové dveře |
| Materiál | | Ocel |
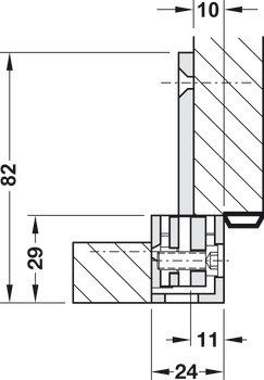
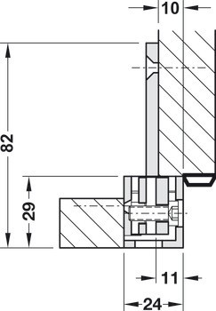
| Výška | | 240,00 mm |
| Model | | VX 2502 3D N |
| Zařízení pro nastavení | | Side adjustment ±3 mm, Height adjustment ±3 mm, s trvale připevněnými dveřmi pomocí seřizovací mechaniky |
| Poznámka ke hmotnosti dveří | | s krytem VX 2560 |
| Hmotnost dveří | |
| Průměr frézovacího bitu | | 24,00 mm |
| Poloměr | | 12,00 mm |
| Montáž | | Pro použití na DIN levé a DIN pravé straně |
| Tloušťka obložkové zárubně | | 22,00 mm |
| Šířka falce | | 12,00 mm |