Zavřít
Pobočky
Přihlášení
0
0,00 Kč
Váš seznam je zatím prázdný.
0
Menu
Úchytky
Nábytkové úchytky a knobky
Okenní kliky
Dveřní kliky
Bezpečnostní kování
Nábytkové kování
Příslušenství dveří, Dorazy
Koupelnové doplňky a sanita
Nábytkové závěsy
Vybavení prodejen
Řešení pro domov a život
Věšáky na šaty a věšáky do šatních skříní
Postelová kování
Kování do šatních skříní a úložných prostor
Multimediální archiv
Žebříky do knihoven
Zámky, Záskočky a zástrče
Nábytkové zámky a zamykací systémy
Nábytkové záskočky a zástrče
Trezory a skříně na zbraně
Výklopná kování a klopny
Stolová kování, Nohy, Nohy a kolečka
Stolové nohy, Nábytkové nohy a mechanismy nastavení
Stolová kování
Nábytkové kluzáky a kolečka
Spojovací kování a podpěrky polic
Spojovací kování
Podpěrky polic a konzole
Kování pro kanceláře a vybavení obchodů
Systém kancelářského stolového podnoží
Organizace kanceláře
Kancelářské židle
Akustická a pohledová ochrana
Zásuvky, Zásuvkové systémy a výsuvy
Zásuvkové výsuvy
Zásuvkové systémy
Vložky do zásuvky
Vybavení kuchyní
Dřezy a kuchyňské baterie
Spotřebiče
Malé spotřebiče
Myčky
Chlazení a mražení
Větrací mřížky a systémy
Pracovní desky a záda
Úložné prostory a příslušenství do kuchyně
Nakládání s odpadky
Osvětlení & elektro
Osvětlení
Zdvihací mechanismy do korpusu, TV zdvihy a držáky
Elektrické příslušenství
Systémy pro TV a multimédia
Posuvné kování
Systémy posuvných stěn
Kování pro posuvné a skládací nábytkové dveře
Stavební kování pro posuvné a skládací dveře
Obvodový plášť budovy
Stavební kování
Skleněné dveře & Kování pro skleněné dveře
Dveřní zavírače
Stavební vybavení
Zamykací systémy
Zámky a závory
Kování pro panikové uzávěry
Řízení kontroly vstupu
Příslušenství dveří
Dveřní závěsy
Nářadí & příslušenství
Údržba & Balení
Péče o povrchy & Opravy
Ochranné pomůcky & Pracovní oděvy
Těsnicí hmoty & Lepidla
Lepidla
Těsnicí hmoty
Pásky
Šrouby
Upevňovací materiál
Nářadí a Příslušenství
Ruční nářadí a přípravky
Elektrické nářadí
Vrtáky, bity, pilové plátky
Žebříky, Pracovní stoly a úložné prostory
Brusný materiál
Úvodní strana
/
Osvětlení & elektrická kování
/
Osvětlení
/
Profil pro spodní montáž, Häfele Loox profil 2191
+ 7
Profil pro spodní montáž, Häfele Loox profil 2191
-- vyberte --
Délka
-- vyberte --
Barva/povrchová úprava
-- vyberte --
Montáž
-- vyberte --
Materiál
-- vyberte --
Vnitřní šířka
-- vyberte --
Šířka difuzoru
Zrušit filtry
Obsah balení
1 hliníkový profil
1 difuzor
Varianty produktu
Profil pro spodní montáž, Häfele Loox profil 2191
Délka: 2.500,00 mm,
Barva/povrchová úprava: Difuzor: bílý opál,
Montáž: K přišroubování s montážním klipem,
Materiál: Difuzor: Plast,
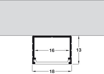
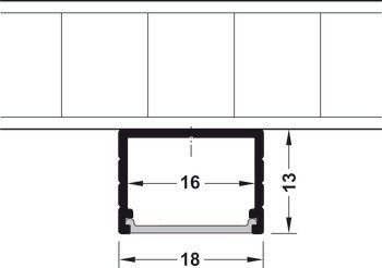
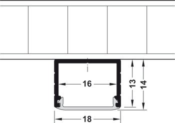
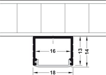
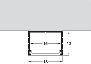
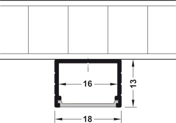
Vnitřní šířka: 16,00 mm,
Šířka difuzoru: 18,00 mm
Kód: 833.72.982
Skladem u dodavatele
-
+
339,22 Kč
za 1 ks bez DPH
Do seznamu
Tento produkt je k dispozici na
Online-Shopu JAF HOLZ
Parametry
Délka
2.500,00 mm
Barva/povrchová úprava
Difuzor: bílý opál
Montáž
K přišroubování s montážním klipem
Materiál
Difuzor: Plast
Vnitřní šířka
16,00 mm
Šířka difuzoru
18,00 mm
Můžete si dokoupit
Difuzor, Pro Häfele Loox hliníkové profily s vnitřním rozměrem 16 mm
103,28 Kč
Koncová krytka, Pro Häfele Loox profil 2191
12,31 Kč
Inline spínač stmívače, Häfele Loox5, 12 V, 2pólové (jednobarevné)
287,84 Kč
Inline spínač stmívače, Häfele Loox5, 24 V, 2pólové (jednobarevné)
314,01 Kč
7x vzorkovna Häfele v ČR
Otevřeno každý pracovní den od 7:00.
Pobočky
Katalogy
Nábytkové kování Häfele
Stavební katalog Häfele
Brožury Häfele
O portálu
Provozovatel portálu
Jak používat portál
Sortiment
Úchytky
Nábytkové kování
Vybavení kuchyní
Osvětlení a elektro
Posuvné kování
Stavební kování
Nářadí a příslušenství
Pobočky
Domašín
Vyškov
Ostrava
Česká Třebová
Rokycany
Brandýs n. L.
Vodňany
Česko
Slovensko
© 2024, JAF HOLZ spol. s r.o.
Profesionální e-shop na míru