




1 zámek s kryty
Upevňovací materiál
Montážní návod





| Verze | S převodem |
|---|---|
| Model | 103 |
| Pro tloušťku skla | | 10 mm | 8 mm |
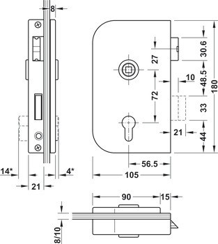
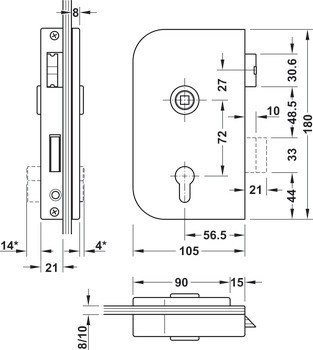
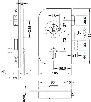
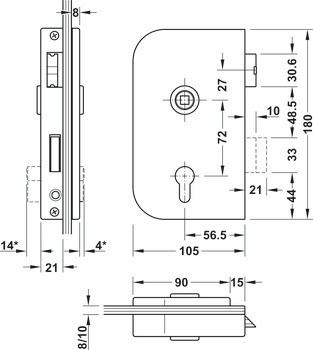
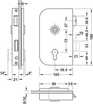
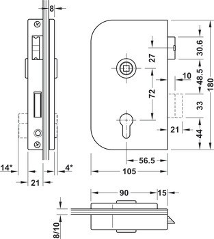
| Backset | 56,50 mm | 56.50 mm | 56,5 mm |
| Montáž | | DIN levý | DIN pravý |
| Barva/povrchová úprava krytu | | matný | Černý, matný, elox |
| Zdvih závory | 2 otáčky |
| Ořech kliky | 8,00 mm | 8.00 mm | 8,0 mm |
| Rozteč | 72,00 mm | 72.00 mm | 72,0 mm |
| Pro typ skla | Tvrzené bezpečnostní sklo (ESG) |
| Materiál krytu | | Nerez | Hliník |
| Typ zámku | PC |
| Rozsah použití | Objekty |
| Vybavení | Standardní střelková závora|Převod |
| Vhodné pro | | Kliky s rozetami kliky | Kliky bez rozet kliky |
| Vhodnost podle DIN 18251 | Část 1, třída 3 |