






| Materiál | Nerez, třída 1.4016 |
|---|---|
| Barva/povrchová úprava | matný |
| Rozsah použití | Pro dřevěné zárubněpro falcové dveře |
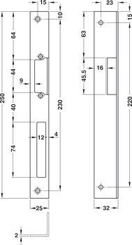
| Tloušťka | 2.00 mm |
| Délka x šířka mm | 250 x 25 mm |
| Montáž | | DIN levý | DIN pravý |
| Konstrukce dveří | Falcové |
| Šířka čelního plechu | 25.00 mm |
| Pro typ zárubně | Dřevěný rám |
| Kontura čelního plechu | čtyřhranné |