




4 vozíky (po 2 pro zadní/přední dveře)
4 dveřní dorazy
4 vedení (2 pro zadní/přední dveře)
Montážní materiál





| Rozsah použití | | Pro 2 dveře | Pro 3 dveře |
|---|---|
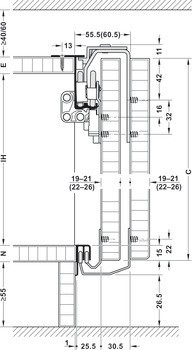
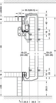
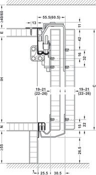
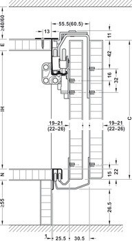
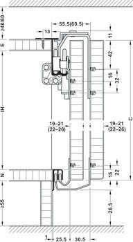
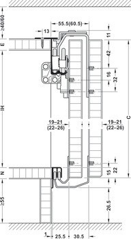
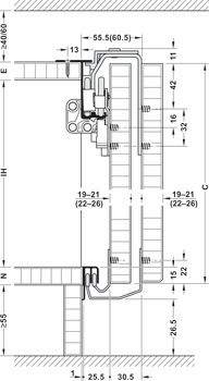
| Pro tloušťku dveří | | 22 – 26 mm | 16 – 21 mm |
| Pro materiál dveří | dřevo |
| Design skříně | se snadnou konstrukcí korpusu |
| Sada | Sada bez kolejnic |
| Počet dveří | | 3,00 | 2,00 | 3.00 | 3.0 |
| Mechanismus tlumeného zavírání | s nacvakávacím dveřním dorazem |
| Pro hmotnost dveří | ≤50 kg |
| Materiál/Povrchová úprava | Vozík: Ocel, Vedení: Ocel, Kolečka: Plast, Osy: Ocel |
| Montáž | Vedení k nacvaknutí do připevněné svorky|Vodicí kolejnice k přišroubování ke korpusu zvenku nebo zevnitř (volitelně)|Horní pojezdová kolejnice k přišroubování ke korpusu|Vozík a klip vedení k přišroubování na vedení dveří k naklapnutí |
| Poloha pojezdu | Nahoře |
| Počet koleček | 1,00 | 1.00 | 1.0 |
| Uložení vozíku | Kuličkové ložisko |