

Tuto položku již nelze zakoupit
1 tělo zámku
1 pár zajišťovacích háčků
2 zamykací závory s podložkou k přišroubování
2 vodítka tyče
| Verze | Sada |
|---|---|
| Barva/povrchová úprava | Nikl, Nikl |
| Rozsah použití | Pro průběžné profilové tyče,pro zámkové vložky vsazované zepředu na místě realizace,pro kombinaci se zámkovou vložkou Symo |
| Montáž | K přišroubování |
| Materiál | Zinková slitina |
| Vhodné pro | profilové tyče Ø 8 mm |
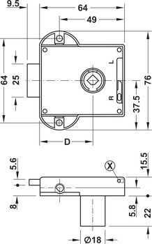
| Poznámka k montáži | Při návrhu skříní a výběru příslušenství k trojcestným zámkům zohledněte, že otočné trny musí být zkráceny na požadovanou délku.Při dané světlé výšce korpusu ⓒ a montáži trojcestného zámku do středu výšky je délka horní tyče ⓐ a délka spodní tyče ⓑ. Střed těla ⓓ – 25 mmDíky třem rozdílným rozměrům backsetu (15, 25 a 40 mm) je při stejném vzoru vrtání u korpusů rohové skříňky a řady korpusů možné vytvořit identické velikosti mezery.Upozornění: Standard Nova, backset 40 mm je připraven pro průběžnou profilovou tyč. |
| Průměr těla | 18.00 mm |
| Povrchová úprava | Nikl |
| Backset | 40.00 mm |
| Rozměr zdvihu závory | 9.50 mm |
| Montáž | levé nebo pravé |
| Délka těla vložky | 22.00 mm |
| Funkčnost | Přestavení směru zamykání je možné i v namontovaném stavu, zámek přitom musí být zamčený.Při použití třícestného zámku Standard-Nova v levém provedení s jehličkovou výměnnou vložkou musí být použita speciální zamykací oliva, viz Příslušenství. |