








| Rozsah použití | | Pro 1 dveře | Pro 2 otočně posuvné dveřePro konstrukci s nastavitelným podnožím | Pro 2 otočně posuvné dveřePro konstrukci s pevným soklem |
|---|---|
| Materiál | Hliník |
| Barva/povrchová úprava | Barva stříbra, elox |
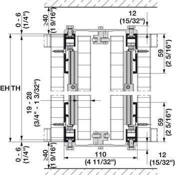
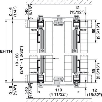
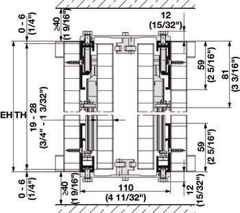
| Šířka | 110,00 mm | 55.00 mm |
| Vhodné pro | Hawa Concepta 25/30/40/50 | Hawa Concepta 35 předmontovaná |
| Délka | | 26 mm | 900 mm | 650 mm |
| Popis v tabulce součástí | parkovací kapsa pro 2 dveře: Spoj spojovacího profilu, horní nebo spodní (konstrukce s nastavitelným podnožím) | parkovací kapsa pro 2 dveře: Spoj spojovacího profilu, spodní (konstrukce s pevným soklem) | parkovací kapsa pro 2 dveře: Spoj spojovacího profilu s vymezovacími profily, nahoře nebo dole (konstrukce s nastavitelným podnožím) |