






| Verze | Magnetický otevírač s držákem | Magnetický zámkový systém pro dveře s protikusem |
|---|---|
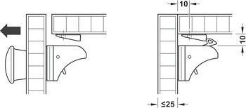
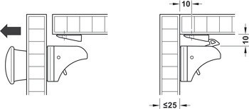
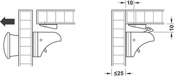
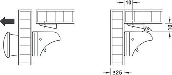
| Rozsah použití | Pro dveře ze dřeva, skla, keramických dlaždic, laminátu a barevných materiálů při tloušťce dveří ≤25 mm, vhodné pro bezpečnost dětí: pokud je střelková závora odemknuta magnetickým otvíračem, dveře lze otevřít. |
| Montáž | k přišroubování nebo nalepení pomocí proužků lepidla | k nalepení pomocí proužku lepidla |
| Materiál | Plast |
| Typ produktu | Magnetický otevírač s držákem | Systém magnetického zámku pro dveře s protikusem |
| Barva/povrchová úprava | Bílá |