





| Verze | | Zamykací tyč lze zkrátit |
|---|---|
| Barva/povrchová úprava | | Zinek, Pozink |
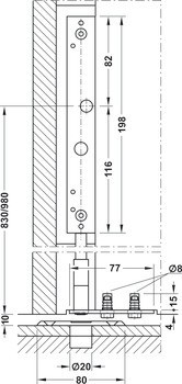
| Rozsah použití | | Pro zamykání, vedení a zajištění sklopné a skládací stěny |
| Materiál | |
| Materiál | | Ocel |
| Zdvih | | 46,00 mm |
| Ovládání | | čtyřhranným nebo šestihranným nástrčným klíčem z přední hrany nebo plochy dveří |