





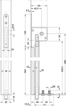
| Verze | Zamykací tyč nelze zkrátitpracovní výška: 960 mm |
|---|---|
| Délka | 1.033,00 mm |
| Barva/povrchová úprava | Zinek |
| Rozsah použití | Pro zamknutí a zajištění sklopné a skládací stěny |
| Materiál | Ocel |
| Zdvih | 18,00 mm |
| Ovládání | čtyřhranným nebo šestihranným nástrčným klíčem z plochy dveří |