




1 vložka s knobkou
2 klíče
1 montážní šroub


| Verze | | Pro systém HK | Pro systém GHK |
|---|---|
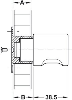
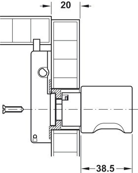
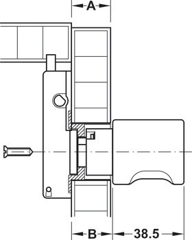
| Rozsah použití | | Pro zámky se zámkovou rozetou ⌀ 30 mm |
| Materiál | |
| Materiál | | Mosaz|Zinková slitina |
| Vhodné pro | | zámky se zámkovou rozetou Ø 30 mm |
| Typ uzávěru | | s 5 pinovými stavítky |
| Zamykací systém | | Individuální uzamykací systém HK | Individuální uzamykací systém GHK |
| Upřesnění | | Chrom |