




1 sada zdvihacího mechanismu (2 kusy, symetrické, včetně 6 vrutů do dřevotřísky ⌀ 4 x 35 mm)
2 krytky
1 montážní návod





| Verze | Montáž čelního panelu bez nářadí díky klip systému,Otevírací síla a zavírací síla plynule nastavitelná na zdvihacím mechanismu,Šířka výklopu závisí na výkonnostním faktoru |
|---|---|
| Rozsah použití | Pro menší, jednodílné výklopy ze dřeva nebo s hliníkovým rámečkem |
| Montáž | kování k přišroubování,rychlomontáž čelního panelu bez nářadí pomocí klip systému |
| Materiál | Ocel |
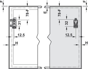
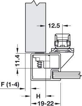
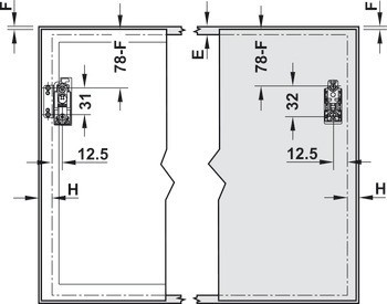
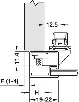
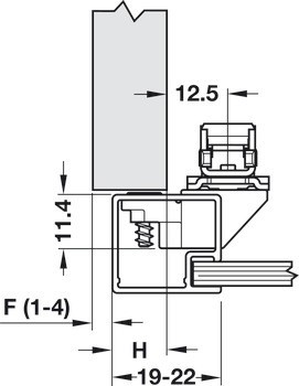
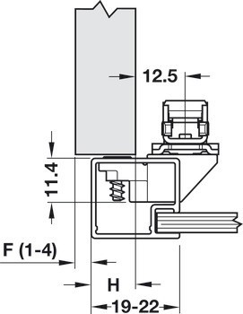
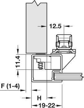
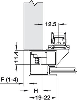
| Poznámka k montáži | Výpočet rozměrů zdvihacího mechanismu výkonnostní faktor LF = výška korpusu (mm) x hmotnost čelního panelu (kg) včetně hmotnosti dvojité úchytky (kg)Výkonnostní faktor lze zvýšit o 50 % pomocí 3. zdvihacího mechanismu. |
| Model | | 20K2B00.06 | 20K2C00.06 | 20K2E00.06 |
| Barva krytu | | Světle šedá | Tmavě šedá | Hedvábná bílá |
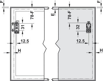
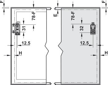
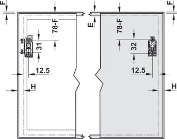
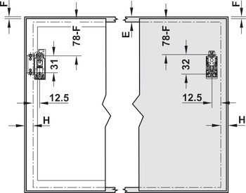
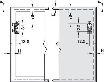
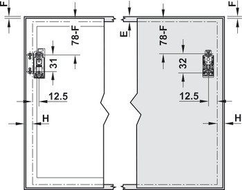
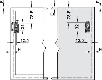
| Pro výšku korpusu | 150 – 600 mm |
| Úhel otevření | 107 ° |
| Materiál víka | Dřevo, Hliníkový rámeček |
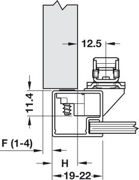
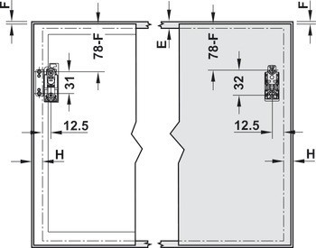
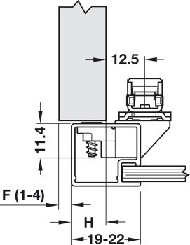
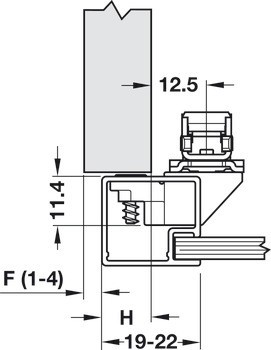
| Montážní hloubka | | 163,00 mm | 163.00 mm |
| Výkonnostní faktor | | 220 – 500 | 400 – 1000 | 960 – 2215 |
| Model No. | | 20K2B00.06 | 20K2C00.06 | 20K2E00.06 |
| Barva/povrchová úprava | kování: pozink |
| Typ výklopu | jednodílné |