







| Barva/povrchová úprava | Čelní plech, kryt čelního plechu, ořech kliky a ořech závory, přídržná deska a tělo zámku: světlý pozink |
|---|---|
| Materiál | Čelní plech, kryt čelního plechu, ořech kliky a ořech závory, přídržná deska a tělo zámku: ocelzamykací táhlo a vodicí profil: hliníkhlava střelkové závory: mosaz |
| Model | Silent-Stop |
| Montáž | Pro použití na DIN levé a DIN pravé straně |
| Pro materiál dveří | dřevo |
| Výška dveří max. | 3.000,00 mm | 2.350,00 mm |
| Verze | Bez protiplechu |
| Funkčnost | S převodem |
| Připraveno pro | Profilová vložka |
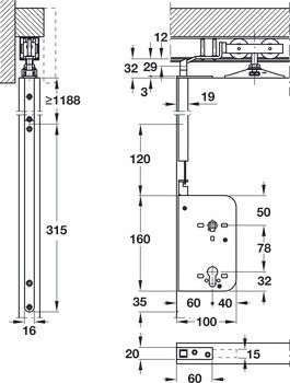
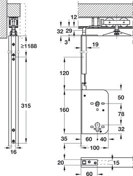
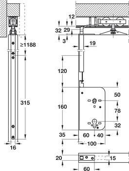
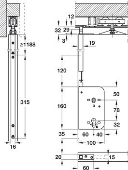
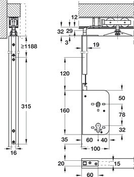
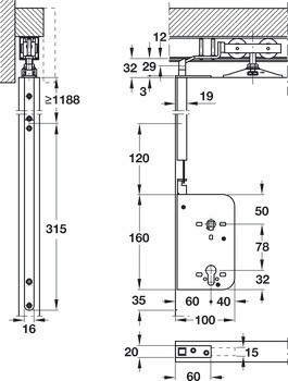
| Šířka čelního plechu | 16,00 mm |
| Typ zámku | | PC | WC/koupelna |
| Montáž | Vodicí profil a kryt čelního plechu lze zkrátit |
| Vlastnosti | Zamykání v pojezdové kolejnici |